Beschrijving
Bijzonder wonen in de kindvriendelijke wijk Oostpolder!
Deze woning is echt fantastisch! Kombuis 12 is een prettige, instapklare, zeer energiezuinige en verrassend ruime woning met ca. 188 m² gebruiksoppervlakte.
Deze uitgebouwde woning is in 2022 gebouwd en heeft 6 kamers waarvan 5 slaapkamers en een aparte wasruimte. De ligging is zeer gunstig: rustig gelegen op één van de ruim opgezette eilanden in de geliefde wijk Oostpolder. De tuin grenst direct aan het water!
Het voorzieningen niveau is hoog, met de scholen aan het einde van de straat.
ALGEMEEN
• stijlvol & instapklaar
• zeer energiezuinig: A+++ (momenteel € 25,- per maand)
• ca. 188 m² woonoppervlakte
• 6 kamer woning
• ligging direct aan het water
• 16 zonnepanelen
• slaapkamers met rolluiken
• 5 airco units
• vloerverwarming op alle verdiepingen
• gehele woning voorzien van PVC vloeren en trappen
• sfeervolle haard in woonkamer (elektrisch)
INDELING
Begane grond
Bij binnenkomst valt het hoge afwerkingsniveau met onder meer de PVC visgraatvloer direct op. De hal met garderobe geeft toegang tot het moderne toilet, de meterkast, de dichte trap naar 1e verdieping en het woongedeelte.
De woonkamer is indrukwekkend. Door de uitbouw aan de achterzijde is er een geweldige ruimte ontstaan. De brede raampartij met 6 hoge ramen zorgt voor veel lichtinval en maakt de tuin onderdeel van de beleving. De muur is goed en stijlvol benut: de diverse vakken bieden plaats aan speciale objecten en de televisie. Tevens heeft de elektrisch haard een mooie plek gekregen; deze zorgt voor extra sfeervolle woonkamer. De achtertuin bereikt u middels openslaande deuren. De kast onder de trap is ruim en praktisch.
Het middengedeelte van de woonkamer biedt plaats aan een grote eettafel. Het eetgedeelte is de centrale plaats en verbindt het zitgedeelte aan de achterzijde met de keuken aan de voorzijde van de woning.
De open keuken met kookeiland heeft een inductiekookplaat met geïntegreerde afzuiging (Bora). Er is een dubbele koelkast, 2 ovens (combi-oven en oven), een vaatwasser en een Quooker. De vriezer staat in de nabijgelegen berging. Er is veel werkruimte en de diverse ladekasten zorgen voor voldoende opbergruimte. De lichtinval is prettig te noemen; u kijkt mooi weg over het eiland. Voor nog meer spullen is de kast onder de trap ook binnen handbereik.
De inpandige berging is direct vanuit de woonkamer en vanaf buiten bereikbaar. Deze praktische ruimte heeft dezelfde stijlvolle afwerking als de woonkamer (visgraat, vloerverwarming etc). Momenteel staat hier de vriezer opgesteld.
1e verdieping
Dit is nog eens een grote overloop! Deze geeft toegang tot de 4 slaapkamers, het toilet en de badkamer. Alle slaapkamers op deze verdieping zijn voorzien van een airco unit, draai-kiepramen, horren en rolluiken. De PVC vloer loopt netjes door over de gehele eerste (en tweede) verdieping. Er is tevens vloerverwarming in alle vertrekken.
Slaapkamer 1 ligt aan de achterzijde van de woning en is momenteel in gebruik als de “master bedroom”.
Slaapkamer 2 ligt ook aan achterzijde en is met 12 m² ruim bemeten.
De slaapkamers aan de achterzijde hebben een goed zicht op de tuin en het water.
Slaapkamer 3 is een grote slaapkamer aan de voorzijde van de woning.
Slaapkamer 4 is ook een prima slaapkamer, gelegen aan de voorzijde van de woning. Deze kamer is extra licht door de 2 raampartijen.
De slaapkamers 3 en 4 zijn eventueel samen te voegen.
De moderne badkamer heeft een grote inloopdouche, een ligbad en een brede wastafel met dubbele kraan. Het badkamermeubel maakt deze badkamer compleet.
Het separate tweede toilet is netjes uitgevoerd.
2e verdieping
Deze verdieping heeft een wasruimte en de 5e slaapkamer. De PVC vloer loopt netjes door en is identiek aan de PVC vloer van de 1e verdieping. Ook hier is vloerverwarming.
Slaapkamer 5 is door de grote dakkapel aan de achterzijde verrassend ruim! Het is zelfs mogelijk deze kamer te splitsen in 2 slaapkamers. Ook het plaatsen van een extra badkamer behoort tot de mogelijkheden; de aansluitingen zijn al aanwezig.
De waskamer is erg ruim en biedt voldoende opbergruimte. Naast de wasmachine en wasdroger is hier ook de slimme warmte terugwin installatie (WTW) en de omvormer voor de zonnepanelen geplaatst.
Buiten
De netjes aangelegde achtertuin is grotendeels bestraat en heeft meerdere niveaus met terrassen. In deze heerlijke tuin heeft u altijd een plekje in de zon of schaduw. Er is voldoende ruimte voor het plaatsen van een trampoline of de barbecue.
Aan de waterkant is een vlonder geplaatst. Het is hier heerlijk ontspannen en er altijd wel iets te zien. Er is tuinverlichting, elektra en een watertappunt.
De voortuin is grotendeels bestraat en geeft toegang tot de woning en de inpandige berging. De deuren zijn identiek; neemt u bij voorkeur de linker deur bij uw bezichtiging !
De ligging
Kombuis 12 ligt in de populaire en kindvriendelijke wijk Oostpolder. De sportvelden, winkels en scholen zijn in de directe omgeving. De N3, welke aansluit op de A15 en A16 is eveneens snel bereikbaar.
KENMERKEN
Type woning: Eengezinswoning
Soort: Tussenwoning / geschakeld 2-onder-1 kap
Aantal kamers: 6
Aantal slaapkamers: 5
Bouwjaar: 2022
Ligging achtertuin: Noordoost
Gebruikersoppervlakte: ca. 188 m²
Berging: ca. 5 m²
Perceel: 191 m²
Inhoud: ca. 636 m³
Locatie: In woonwijk, aan het water
Elektra: 13 groepen, 3 aardlek- en 1 hoofdschakelaar
Internet / TV: Glasvezel aansluiting
Verwarming: Stadsverwarming, 5 airco units
Zonnepanelen: 16
Kadaster: Papendrecht, sectie C, nummer 4807
Energielabel: A+++
Oplevering: In overleg
AFMETINGEN
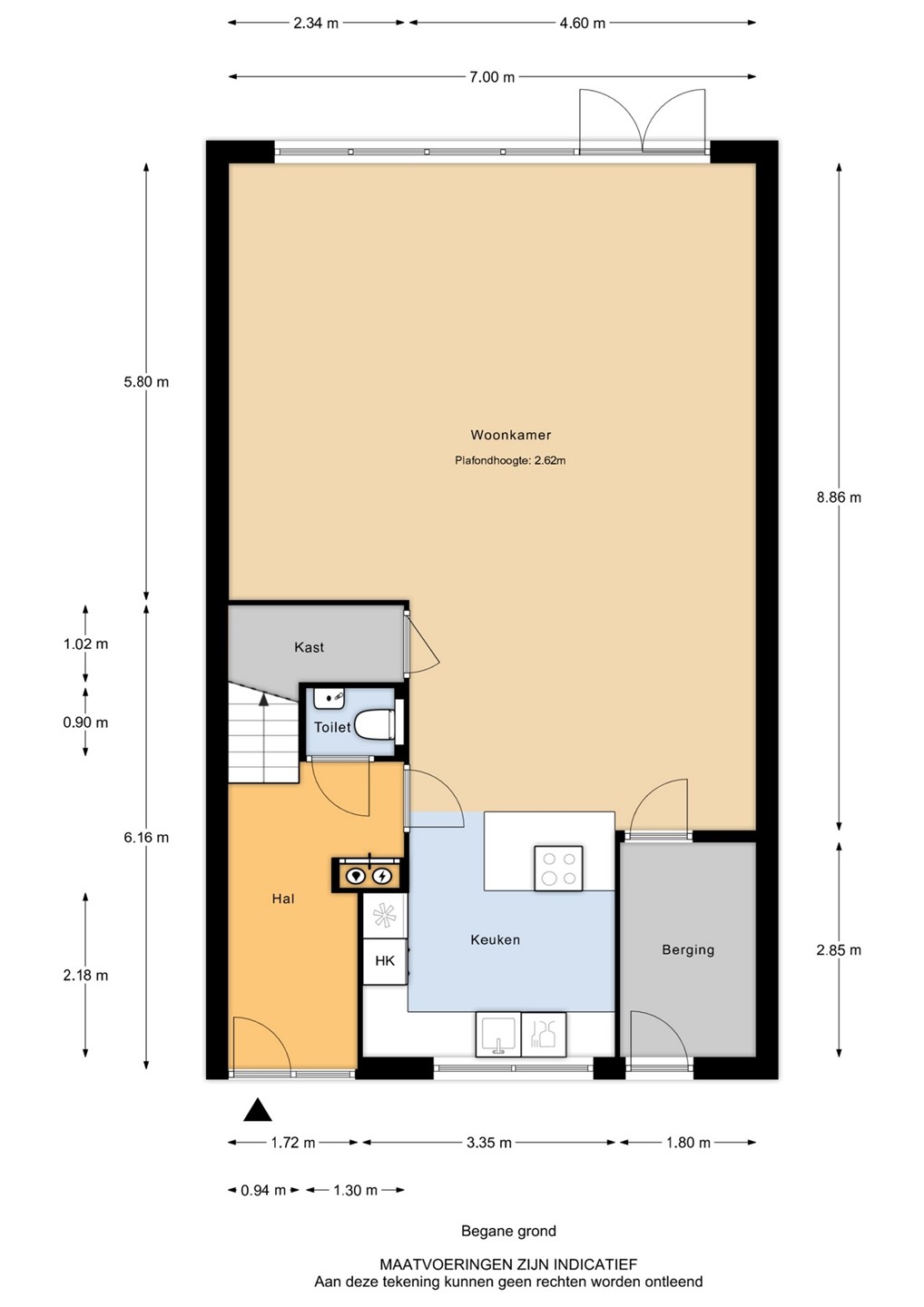
Begane grond
- Hal: ca. 1.72 x 4.24 m;
- Toilet: ca. 1.30 x 0.90 m;
- Woonkamer: ca. 7.00/4.60 x 8.86/5.80 m;
- Kast: ca. 3 m²;
- Keuken: ca. 3.35 x 2.85 m;
- Berging: ca. 1.80 x 2.85 m.
Eerste verdieping
- Overloop: ca. 2.60 x 3.42m;
- Slaapkamer 1: ca. 3.92 x 4.00 m;
- Slaapkamer 2: ca. 3.00 x 4.00 m;
- Slaapkamer 3: ca. 2.84 x 3.68 m;
- Slaapkamer 4: ca. 4.09 x 2.34 m;
- Badkamer: ca. 2.84 x 2.05 m;
Tweede verdieping (nokhoogte 3.56 m / zie plattegrond)
- Overloop: ca. 2.5 m²;
- Slaapkamer 5: ca. 5.10/2.60 x 5.85//2.80 m;*
- Wasruimte: ca. 2.50 x 2.22 / 3.46 m*.
* vanaf 1.50 m gemeten
Buiten
- Achtertuin: ca. 7.00 x 10.60 m;
- Voortuin: ca. 7.00 x 2.90 m.
Disclaimer
Nadrukkelijk vermelden wij dat deze informatieverstrekking niet als een aanbieding of offerte mag worden beschouwd. Aan deze gegevens kunnen derhalve geen rechten worden ontleend en zijn wijzigingen voorbehouden.
De vermelde afmetingen/ oppervlakten in deze informatie zijn gemeten op basis van de BBMI (Branche Brede Meetinstructie). De meetinstructie is bedoeld om een meer eenduidige manier van meten toe te passen voor het geven van een indicatie van de gebruiksoppervlakte. De meetinstructie sluit verschillen in meetuitkomsten niet volledig uit, door bijvoorbeeld interpretatieverschillen, afrondingen of beperkingen bij het uitvoer en van de meting.
Let op: een aantal foto’s in deze verkooppresentatie zijn genomen met een groothoeklens. Voor verkrijging van een reële indruk van de ruimten dient u de foto’s te spiegelen aan de vermelde afmetingen. Indien er plattegronden aan deze brochure zijn toegevoegd, houdt u er dan rekening mee dat deze plattegronden slechts een indicatie geven van de indeling. Heeft u als geïnteresseerde deze woning bezichtigd met In Dordrecht Makelaardij, dan willen wij u graag verzoeken om ons binnen 3 werkdagen een reactie te geven.
In Dordrecht Makelaardij verlangt bij een verkooptransactie dat de kopende partij t.b.v. de verkopende partij een bankgarantie stelt c.q. waarborgsom stort ter grootte van 10% van de koopsom kosten koper. Dit ter meerdere zekerheid tot nakoming van de verplichtingen die voortvloeien uit de koopakte voor de kopende partij.