Beschrijving
Onbegrensde mogelijkheden! Deze moderne 6 kamer woning (type 2-onder-1 kap) met inpandige garage kan op verschillende manier gebruikt worden. Doordat de begane grond is voorzien van een tweede badkamer met toilet en extra kamer is deze ideaal te gebruiken als kantoor of separate woonverdieping. De woonkamer met open keuken op de eerste verdieping is voorzien van een vide; dit zorgt voor veel lichtopbrengst. Op de derde en vierde verdieping zijn er nog 4 slaapkamers, een extra badkamer en het dakterras. In 2025 zijn er zonnepanelen geplaatst.
Deze woning uit 1999 ligt in de wijk Kraaihoek met veel voorzieningen in de directe nabijheid. De winkels bij de Westpolder en De Meent, diverse scholen en uitvalswegen liggen in de directe nabijheid.
UITGELICHT
• 4 laagse 2-onder-1 kap woning
• Veel toepassingsmogelijkheden
• 5 slaapkamers (inclusief “vide kamer”)
• Airco-unit in woonkamer
• WTW-systeem (Warmte TerugWin)
• Vergrootte badkamer met jacuzzi
• Totaal 2 badkamers
• Inpandige garage
• Dakterras
• PVC vloerafwerking gehele woning
• Bedraad internet in gehele woning
• Zonnepanelen (2025)
• Schilderwerk (2025)
• Watervitalisator (EWO Classic, 2021)
• Veel voorzieningen in omgeving
INDELING
Begane grond
De ruime hal met meterkast geeft toegang tot de inpandige garage, de trap naar de 1e verdieping en de gang. Deze gang brengt u naar de badkamer en slaapkamer. De hal, gang en slaapkamer zijn voorzien van een PVC vloer.
De ruime inpandige garage is uiteraard van binnenuit bereikbaar. Daarnaast is de kanteldeur elektrisch bedienbaar.
De half betegelde badkamer (badkamer 2) is voorzien van een douche, wastafel en een toilet.
Slaapkamer 1 is gelegen aan de achterzijde van de woning en beslaat de volledige breedte. Momenteel is deze kamer in gebruik als kantoor. De twee aluminium schuifpuien zorgen samen met de grote raampartij voor veel lichtopbrengst. De huidige eigenaren hebben hier een extra koel/vries combinatie geplaatst.
De eerste verdieping
Deze woonetage heeft een overloop, een berging en de woonkamer met open keuken. Deze verdieping is ook voorzien van een PVC vloer. De WTW en CV installatie zijn in de berging geplaatst.
De woonkamer geeft direct een “wow-effect”; de vide zorgt voor een geweldige lichte en ruime beleving en u kijkt hier mooi weg! De airco unit kan koelen en verwarmen en gelukkig hebben de huidige bewoners gekozen voor elektrisch bedienbare gordijnen.
Het woongedeelte aan de achterzijde van de woning staat in open verbinding met de keuken. De PVC vloer is netjes doorgelegd.
Deze open keuken bevindt zich aan de voorzijde van de woning. Het brede 6 pits SMEG gasfornuis met oven springt direct in het oog. Daarnaast zorgt de hoekopstelling voor veel werk- en bergruimte. Het granieten werkblad geeft deze keuken een kwalitatieve en tijdloze uitstraling. Naast de grote oven is er ook een combi-oven, vaatwasser (2025), apothekerskast en koelkast met vriesgedeelte. Het grote raam heeft een screen.
De tweede verdieping
Deze verdieping heeft een overloop, 2 slaapkamers, een badkamer en een toilet. Deze verdieping is voorzien van een PVC vloer. Alle ramen in de slaapkamers zijn voorzien van draai-kiepramen en beschikken over ventilatieroosters.
Slaapkamer 2 ligt aan de voorzijde van de woning en is een prima slaapkamer.
Slaapkamer 3 ligt aan de achterzijde en als studeerkamer gebruikt. De “vide kamer” zorgt voor een open verbinding met de woonkamer.
De moderne badkamer is vergroot waardoor de jacuzzi meer dan voldoende ruimte heeft. Er is een inloopdouche (“rainshower”) en een breed wastafelmeubel met 2 kranen. Het verlaagde plafond is voorzien van inbouwspots.
De derde verdieping
Deze verdieping heeft een overloop, 2 slaapkamers en een dakterras. Op de overloop staat momenteel de wasmachine. Deze verdieping is ook voorzien van een PVC vloer. Het dakterras is vanuit slaapkamer 4 en de overloop direct bereikbaar.
Slaapkamer 4 is een geweldige ruimte. Deze “master bedroom” is over de volle breedte van de woning geplaatst. U kijkt mooi weg naar de achterzijde en heeft tevens een zijraam.
Slaapkamer 5 biedt veel licht en ruimte en sluit direct aan op het dakterras. De moderne shutter-raamafwerking blijft achter.
Het grote dakterras is gesitueerd aan de voorzijde van de woning. Hier kunt u lekker genieten van een cappuccino of een wijntje; er is immers nauwelijks onderhoud nodig .
De ligging
Deze woning is gelegen in de kindvriendelijke wijk Kraaihoek en is gunstig gesitueerd ten opzichte van diverse voorzieningen. Scholen, busverbindingen, het Sportcentrum Papendrecht, evenals het gezellige centrum van Papendrecht zijn op loopafstand bereikbaar. Het Vijverpark en het Vondelpark liggen tevens in de nabijheid. De N3 en A15 zijn snel bereikbaar.
KENMERKEN
Type woning: Eengezinswoning, 2-onder 1 kap
Aantal kamers: 6
Aantal slaapkamers: 5
Bouwjaar: 1999
Gebruikersoppervlakte: ca. 158 m²
Dakterras: ca. 14.7 m²
Garage: ca. 17.6 m²
Perceel: 64 m²
Inhoud: ca. 610 m³
Locatie: in woonwijk
Elektra: 10 groepen, 1 aardlek- en 1 hoofdschakelaar, glasvezel
Verwarming: CV, Intergas Xtreme 36 CW5 (2022)
WTW-systeem: Zehnder-WHR 930 basis R (2020)
Zonnepanelen: 6 stuks (2025)
Airco: 1 airco unit in woonkamer
Parkeren: In garage, openbaar (gratis)
Kadaster: Papendrecht, sectie B, nummer 4927
Energielabel: B
Oplevering: medio maart 2025 / in overleg
AFMETINGEN
Begane grond
- Entree: ca. 2.13 x 4.10 m;
- Hal: ca. 1.00 x 2.80 m;
- Badkamer: ca. 1.03 x 2.38 m;
- Slaapkamer 1: ca. 5.17 x 3.40 m:
- Garage: ca. 2.91 x 6.05 m.
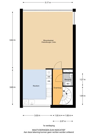
Eerste verdieping
- Woonkamer: ca. 5.17 x 5.84 m;
- Keuken: ca. 3.00 x 3.65 m;
- Overloop: ca. 1.00 x 3.65 m;
- Berging: ca. 1.00 x 1.27 m.
Tweede verdieping
- Hal: ca. 1.03 x 1.96 m;
- Overloop: ca. 1.03 x 3.65 m;
- Slaapkamer 2: ca. 3.00 x 3.65 m;
- Slaapkamer 3: ca. 5.17 x 2.44 m;
- Badkamer: ca. 3.00 x 2.87/2.00 m;
- Toilet: ca. 0.99 x 1.24 m.
Derde verdieping
- Overloop: ca. 3.5 m²;
- Slaapkamer 4: ca. 5.17 x 3.00 m;
- Slaapkamer 5: ca. 3.00 x 3.44 m;
- Dakterras: ca. 5.24 x 2.80 m.
Disclaimer
Nadrukkelijk vermelden wij dat deze informatieverstrekking niet als een aanbieding of offerte mag worden beschouwd. Aan deze gegevens kunnen derhalve geen rechten worden ontleend en zijn wijzigingen voorbehouden. De vermelde afmetingen/ oppervlakten in deze informatie zijn gemeten op basis van de BBMI (Branche Brede Meetinstructie). De meetinstructie is bedoeld om een meer eenduidige manier van meten toe te passen voor het geven van een indicatie van de gebruiksoppervlakte. De meetinstructie sluit verschillen in meetuitkomsten niet volledig uit, door bijvoorbeeld interpretatieverschillen, afrondingen of beperkingen bij het uitvoer en van de meting.
Let op: een aantal foto’s in deze verkooppresentatie zijn genomen met een groothoeklens. Voor verkrijging van een reële indruk van de ruimten dient u de foto’s te spiegelen aan de vermelde afmetingen.
Indien er plattegronden aan deze brochure zijn toegevoegd, houdt u er dan rekening mee dat deze plattegronden slechts een indicatie geven van de indeling. In Dordrecht Makelaardij verlangt bij een verkooptransactie dat de kopende partij t.b.v. de verkopende partij een bankgarantie stelt c.q. waarborgsom stort ter grootte van 10% van de koopsom kosten koper. Dit ter meerdere zekerheid tot nakoming van de verplichtingen die voortvloeien uit de koopakte voor de kopende partij.