Beschrijving
Dit is uw kans: gelijkvloers wonen én een prettige tuin!
Deze moderne en netjes onderhouden 2-laagse woning ligt in de gewilde wijk De Sandeling. Er zijn veel gebruiksmogelijkheden.
Hoe wilt u wonen?
• Gelijkvloers wonen met extra slaapkamer en badkamer op de begane grond;
• Slapen op de eerste verdieping en extra groot woongedeelte (huidige situatie);
• De eerste verdieping vergroten met een dakkapel voor extra kamer(s).
De keuze is aan u!
Deze woning uit 1997 ligt dichtbij veel voorzieningen, zoals het gezellige winkelcentrum De Schoof, openbaar vervoer en scholen. In het naastgelegen recreatiegebied Sandelingen-Ambacht kunt u heerlijk recreëren.
INDELING
Begane grond
De ruime hal met garderobe, meterkast en berging geeft u toegang tot het toilet, de trap naar de eerste verdieping, de badkamer en de woonkamer. De laminaat vloer loopt netjes door van de hal naar het woongedeelte en de keuken.
Het moderne toilet is half betegeld en heeft een fonteintje.
De woonkamer heeft een prettige indeling met het zitgedeelte aan de voorzijde van de woning. Aan de achterzijde bevindt zich het eetgedeelte. Deze “eetkamer” was oorspronkelijk bedoeld als slaapkamer; deze is eenvoudig te realiseren. Er is al een deur die direct toegang geeft tot de badkamer. Ideaal dus en gelijkvloers wonen behoort daarmee tot de mogelijkheden.
De keuken bevindt zich ook aan de achterzijde van de woning. Deze nette keuken is voorzien van een 4 pits inductiekookplaat, afzuigkap, vaatwasser, combi-oven en koelkast. Er is veel werk- en bergruimte aan weerszijden. Het raam zorgt voor een fijne lichtinval en uitzicht op de tuin.
Vanuit de keuken bereikt u de inpandige berging/bijkeuken. Momenteel staat hier de vriezer. De tuindeur geeft direct toegang tot de fijne achtertuin en u stapt direct het ruime terras op. Het elektrisch bedienbare zonnescherm biedt veel schaduw op warme dagen. Er is een buitenkraan aanwezig.
De badkamer is vanuit het eetgedeelte én de hal bereikbaar. Deze ruimte is geheel betegeld en voorzien van een inloopdouche, wastafelmeubel en een bijpassende kast. De vloerverwarming zorgt voor extra comfort.
Vanuit de hal bereikt u via de dichte trap de eerste verdieping. Momenteel is er een handige traplift (Merk: Oto, in gebruik sinds 2021). Deze traplift is eventueel over te nemen.
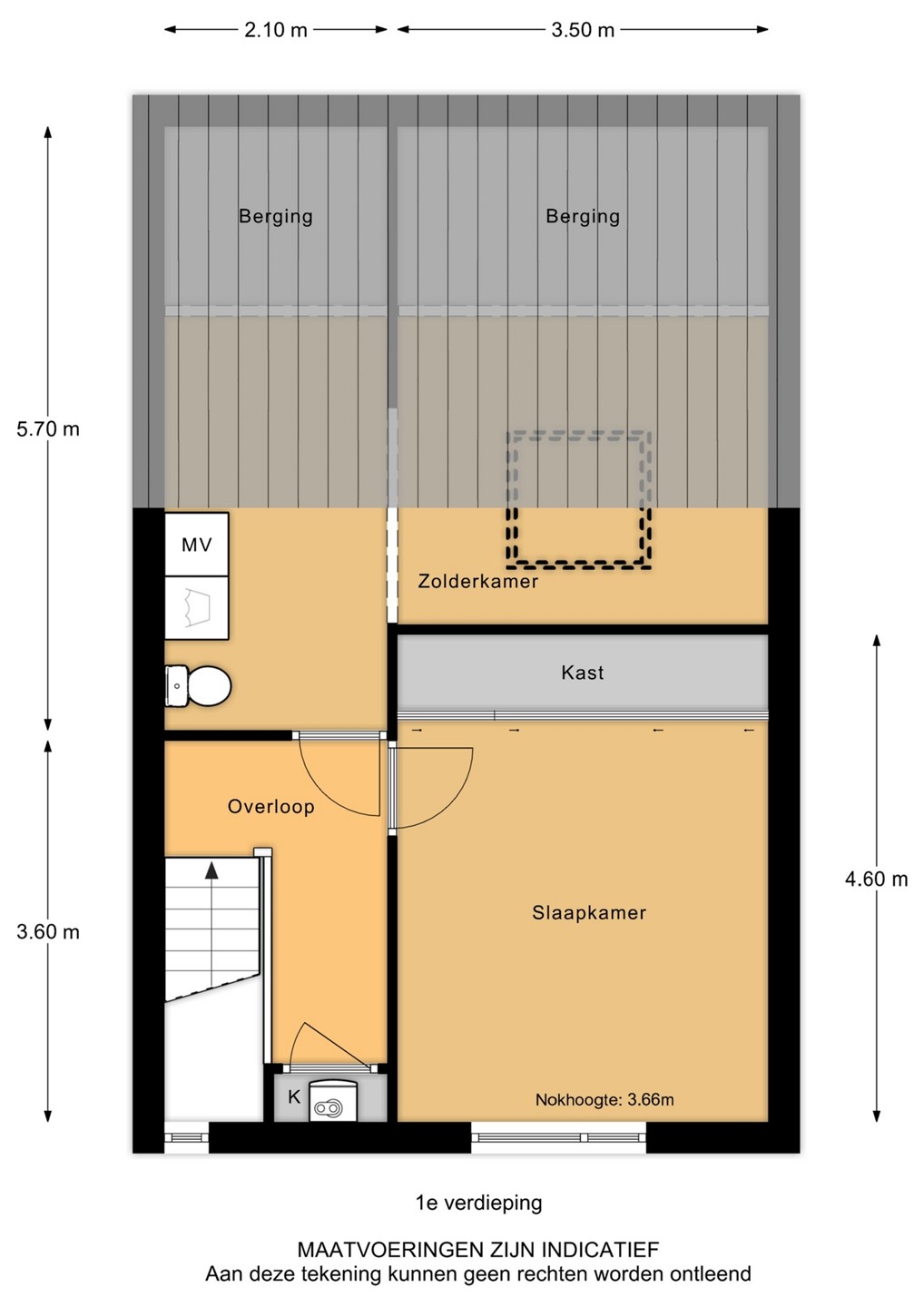
De eerste verdieping
De ruime overloop geeft toegang tot een royale slaapkamer en grote berging/wasruimte.
De cv-installatie is netjes weggewerkt in de kast op de overloop.
De slaapkamer is verrassend groot en heeft over de volle breedte een diepe schuifkast. Het plafond in deze kamer loopt schuin weg tot een hoogte van maar liefst 3.66 m! Dit versterkt het ruimtelijke gevoel. Het grote raam is voorzien van een rolluik.
De ruimte aan de achterzijde is verrassend veelzijdig. Er is onder meer een 2e toilet en een aansluiting voor de wasmachine. Daarnaast is er erg veel bergruimte. Deze ruimte is eenvoudig te vergroten met een dakkapel; hierdoor kunt een extra volwaardige slaapkamer en/of slaapkamer en werkkamer creëren. Veel buren zijn u al voorgegaan.
Buiten
De achtertuin is gunstig gelegen op het zuidoosten. De tuin is netjes aangelegd en er zijn meerdere plekjes om te genieten van de zon en de borders met vaste planten. Het zonnescherm is elektrisch bedienbaar en geeft de nodige beschutting in de zomer. De tuin heeft een achterom.
De voortuin is grotendeels bestraat met in het midden een bloemperkje.
Aan de voorzijde is er voldoende parkeergelegenheid. Ideaal om uw auto dicht bij de woning te kunnen parkeren.
De ligging
Deze woning is gelegen in de populaire woonwijk De Sandeling en is gunstig gesitueerd ten opzichte van diverse voorzieningen. Scholen, busverbindingen en het gezellige winkelcentrum De Schoof liggen op korte afstand. De A16 is snel bereikbaar.
KENMERKEN
Type woning: Eengezinswoning
Soort: Tussenwoning
Aantal kamers: 2 (oorspronkelijk 3)
Aantal slaapkamers: 1 (oorspronkelijk 2)
Bouwjaar: 1997
Gebruikersoppervlakte: ca. 95.2 m²
Berging/bijkeuken: ca. 4.3 m²
Perceel: 130 m²
Inhoud: ca. 290 m³
Locatie: In woonwijk
Elektra: 5 groepen, 1 aardlek- en 1 hoofdschakelaar
Internet / TV: Glasvezel aansluiting
Verwarming: CV, Nefit (2010)
Parkeren: Openbaar (gratis)
Kadaster: Hendrik-Ido-Ambacht, sectie D, nummer 3093
Energielabel: B
Oplevering: In overleg (kan spoedig)
AFMETINGEN
Begane grond
- Hal: ca. 2.10/1.13 x 4.83 m;
- Toilet: ca. 0.90 x 1.20 m;
- Badkamer: ca. 2.10 x 1.96 m;
- Woonkamer: ca. 3.53 x 6.46 m;
- Eetkamer: ca. 3.10 x 4.23 m;
- Keuken: ca. 2.53 x 2.83 m;
- Berging/bijkeuken: ca. 1.60 x 2.68 m.
Eerste verdieping
- Overloop: ca. 5.5 m²;
- Slaapkamer: ca. 3.50 x 4.60 m;
- Wasruimte/toilet: ca. 2.10 x 2.10 m*;
- Berging: ca. 3.50 x 1.15 m*.
* gemeten vanaf 1.50 m hoogte.
Buiten
- Voortuin: ca. 6.00 x 2.60 m;
- Achtertuin: ca. 6.00 x 8.20 m (inclusief berging/bijkeuken).
Disclaimer
Nadrukkelijk vermelden wij dat deze informatieverstrekking niet als een aanbieding of offerte mag worden beschouwd. Aan deze gegevens kunnen derhalve geen rechten worden ontleend en zijn wijzigingen voorbehouden.
De vermelde afmetingen/ oppervlakten in deze informatie zijn gemeten op basis van de BBMI (Branche Brede Meetinstructie). De meetinstructie is bedoeld om een meer eenduidige manier van meten toe te passen voor het geven van een indicatie van de gebruiksoppervlakte. De meetinstructie sluit verschillen in meetuitkomsten niet volledig uit, door bijvoorbeeld interpretatieverschillen, afrondingen of beperkingen bij het uitvoer en van de meting.
Let op: een aantal foto’s in deze verkooppresentatie zijn genomen met een groothoeklens. Voor verkrijging van een reële indruk van de ruimten dient u de foto’s te spiegelen aan de vermelde afmetingen.
Indien er plattegronden aan deze brochure zijn toegevoegd, houdt u er dan rekening mee dat deze plattegronden slechts een indicatie geven van de indeling.
In Dordrecht Makelaardij verlangt bij een verkooptransactie dat de kopende partij t.b.v. de verkopende partij een bankgarantie stelt c.q. waarborgsom stort ter grootte van 10% van de koopsom kosten koper. Dit ter meerdere zekerheid tot nakoming van de verplichtingen die voortvloeien uit de koopakte voor de kopende partij.