Beschrijving
Dit superleuke en instapklare 4 kamer appartement ligt op de 2e verdieping van een appartementencomplex mét lift in de buurt Merwedepolder-Oost.
De woning heeft een moderne keuken (2021) en badkamer (2023), 3 fijne slaapkamers en is grotendeels voorzien van dubbel glas en kunststof kozijnen. Vanuit de lichte woonkamer kijk je leuk uit over de wijk en een groen plantsoen. Het zonnige balkon is gunstig gelegen op het zuiden en is een heerlijke plek om te genieten.
Op de begane grond is nog een aparte afgesloten berging waar je veel spullen kunt stallen. De achter het complex gelegen parkeerplaatsen zijn alleen toegankelijk voor de bewoners.
De ligging is ideaal. Alle voorzieningen zoals scholen, winkels en openbaar vervoer zijn dichtbij. Natuurgebied de Merwelanden ligt op fietsafstand, en bij het riviertje de Wantij is het heerlijk recreëren. De N3 met aansluiting op de A15/A16 is eveneens snel bereikbaar.
INDELING
Begane grond
Het complex beschikt over een afgesloten centrale hal met brievenbussen en intercominstallatie. De centrale hal geeft toegang tot afgesloten entree met liften, bergingen en het trappenhuis.
Appartement (2e verdieping)
Met de lift of trap bereik je de 2e verdieping.
Voordat je het appartement binnengaat vind je de meterkast aan de buitenzijde.
De ruime hal met intercom geeft vervolgens toegang tot alle ruimtes. Er ligt een nette laminaatvloer en de paneeldeuren met zwart deurbeslag geven het appartement een stoere look.
De lichte en ruime woonkamer ligt aan de voorzijde. Je hebt vrij uitzicht over de wijk en het groene plantsoen.
Aan de galerij zijde ligt de moderne en strakke keuken (2021). De keuken is geplaatst in een hoekopstelling en voorzien van inbouwapparatuur waaronder een 4 pits inductie kookplaat, afzuigkap, vaatwasser, grote oven, aparte magnetron en een koel/vries combinatie.
Het grote raam zorgt voor voldoende licht in deze ruimte.
De moderne badkamer is echt geweldig. Deze is in 2023 geheel vernieuwd en stijlvol uitgevoerd. Er is een ruime inloopdouche met regen- en handdouche, een mooi wastafelmeubel met een verlichte spiegel, mechanische ventilatie en een modern hangcloset.
Slaapkamer 1 ligt aan de voorzijde van de woning. Dit is een ruime en lichte slaapkamer die direct toegang geeft tot het balkon.
Slaapkamer 2 ligt ook aan de voorzijde van de woning. Ook deze kamer heeft een deur naar het balkon. Er is een stoere kast waarin de 100 liter warmwaterboiler (Bosch / 2021), de wasmachine en wasdroger netjes zijn weggewerkt.
Slaapkamer 3 is een ruime en lichte kamer aan de galerij zijde. De grote kledingkast blijft achter. Ideaal om veel spullen op te bergen.
BUITEN
Het grote balkon ligt gunstig op het zuiden loopt door achter slaapkamer 1 en 2 en kan vanuit beide kamers worden bereikt. Een heerlijke plek om te genieten tot de zon ondergaat.
Je kijkt uit over de wijk en het groene plantsoen aan de voorzijde van het complex.
BERGING
Op de begane grond vind je de afgesloten eigen berging van circa 4,5 m².
PARKEREN
De achter het complex gelegen parkeerplaatsen zijn alleen toegankelijk voor de bewoners. Via een elektrisch bedienbare slagboom is deze parkeerplaats te bereiken. Daarnaast is het vrij parkeren in de wijk.
KENMERKEN
Soort woning: Appartement (2e verdieping)
Bouwjaar: 1968
Ligging: In woonwijk
Woonoppervlakte: ca. 80 m²
Balkon (zuid): ca. 8 m²
Inhoud: ca. 240 m³
Aantal kamers: 4
Slaapkamers: 3
Parkeren: achter het complex parkeerplaatsen (toegang via slagboom), daarnaast openbaar parkeren
Berging: ca. 4,5 m²
Kadaster: Gemeente Dordrecht, R 2215, A 15
Energielabel: E
Verwarming: Stadsverwarming
Warm water: Boiler (Bosch, 100 liter)
Elektra: 11 groepen, 3 aardlekschakelaars en 1 hoofdschakelaar
Intercom installatie, glasvezel.
Bijdrage VvE: € 191,32 per maand (€ 248,82 inclusief voorschot energie)
Oplevering: In overleg
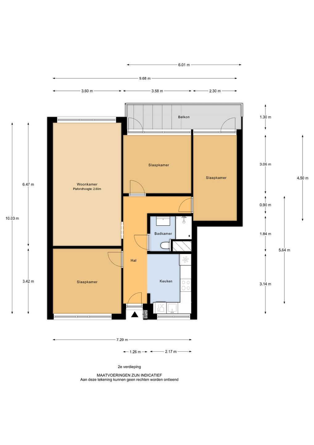
AFMETINGEN
Appartement, 2e verdieping
- Hal: ca. 9 m²;
- Keuken: ca. 2.17 x 3.14 m;
- Woonkamer: ca. 3.60 x 6.47 m;
- Badkamer: ca. 1.84 x 2.17 m;
- Slaapkamer 1: ca. 3.58 x 3.06 m;
- Slaapkamer 2: ca. 2.30 x 4.50 m;
- Balkon: ca. 1.30 x 6.01 m;
- Slaapkamer 3: ca. 3.60 x 3.42 m.
Berging, begane grond
- Berging: ca. 1.74 x 2.57 m.
Disclaimer
Nadrukkelijk vermelden wij dat deze informatieverstrekking niet als een aanbieding of offerte mag worden beschouwd. Aan deze gegevens kunnen derhalve geen rechten worden ontleend en zijn wijzigingen voorbehouden.
De vermelde afmetingen/ oppervlakten in deze informatie zijn gemeten op basis van de BBMI (Branche Brede Meetinstructie). De meetinstructie is bedoeld om een meer eenduidige manier van meten toe te passen voor het geven van een indicatie van de gebruiksoppervlakte. De meetinstructie sluit verschillen in meetuitkomsten niet volledig uit, door bijvoorbeeld interpretatieverschillen, afrondingen of beperkingen bij het uitvoer en van de meting.
Let op: een aantal foto’s in deze verkooppresentatie zijn genomen met een groothoeklens. Voor verkrijging van een reële indruk van de ruimten dient u de foto’s te spiegelen aan de vermelde afmetingen.
Indien er plattegronden aan deze brochure zijn toegevoegd, houdt u er dan rekening mee dat deze plattegronden slechts een indicatie geven van de indeling.
Heeft u als geïnteresseerde deze woning bezichtigd met In Dordrecht Makelaardij, dan willen wij u graag verzoeken om ons binnen 3 werkdagen een reactie te geven. In Dordrecht Makelaardij verlangt bij een verkooptransactie dat de kopende partij t.b.v. de verkopende partij via de notaris een bankgarantie stelt c.q. waarborgsom stort ter grootte van 10% van de koopsom kosten koper. Dit ter meerdere zekerheid tot nakoming van de verplichtingen die voortvloeien uit de koopakte voor de kopende partij.