Beschrijving
Leuk 3 kamer maisonnette appartement met open keuken, nette badkamer en zonnig balkon op zuidwesten! Deze woning is gelegen op de 2e en 3e verdieping van een kleinschalig appartementencomplex.
Er is een intercominstallatie aanwezig. Met de trap of de lift heeft u toegang tot de woning. Op de begane grond van het complex is een eigen berging beschikbaar.
INDELING
De entree
De ingang van het appartement bevindt zich op de tweede verdieping van het appartementencomplex.
1e woonlaag
Hal met meterkast, garderobe, toilet en toegang tot 2 slaapkamers en de badkamer. Slaapkamer 1 is een royale kamer en ligt aan de achterzijde van het appartement. Er is een vaste kast met schuifdeuren.
Slaapkamer 2 ligt ook aan de achterzijde. Deze kamer kan eventueel vergroot worden door de vaste kast weg te halen.
Het toilet met hangcloset is keurig.
De badkamer is geheel betegeld en voorzien van een inloopdouche met regendouche en een wastafelmeubel. Er is een raam in deze ruimte voor extra ventilatie. De inbouwspots zorgen voor een sfeervolle ruimte.
Trap naar de woonetage.
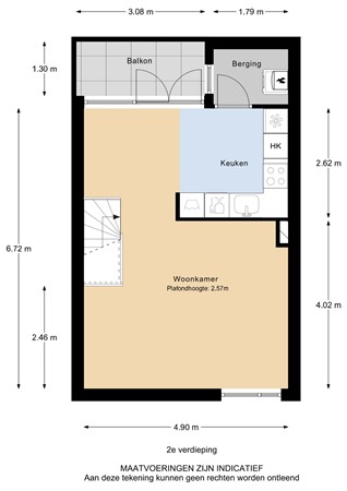
2e woonlaag
De lichte woonkamer grenst aan de achterzijde direct aan het balkon. Aan de voorzijde heeft u zicht op de groene binnenplaats. Er ligt een nette laminaatvloer en de wanden zijn glad afgewerkt. Er is een airco unit aanwezig en ook de intercom installatie bevindt zich in deze ruimte.
De open keuken is in een hoekopstelling geplaatst. Er zijn diverse boven-en onderkasten. De keuken is voorzien van een inductiekookplaat, afzuigkap, combi-oven, inbouw koffieapparaat, koel/vriescombinatie en vaatwasser. Er is tevens een wasmachine aansluiting. De wasmachine blijft achter.
Heel handig is de berging, direct naast de keuken. Hier hangt de warmwaterboiler.
De droger die ook in deze ruimte staat blijft achter.
Buiten
Vanuit de keuken stapt u via de dubbele deuren zo het zonnige terras op. Een heerlijk beschut plekje om buiten te relaxen. Het elektrisch bedienbaar zonnescherm zorgt voor extra beschutting. Het terras is netjes afgewerkt met vierkante vlondertegels.
De ligging
Meindert Hobbemastraat is gunstig gelegen aan een autoluwe straat. Diverse winkels, scholen en uitvalswegen liggen in de directe omgeving. De A16 richting Rotterdam of Breda is snel bereikbaar.
KENMERKEN
Soort woning: Appartement
Type: Maisonnette
Bouwjaar: 1978
Ligging: In woonwijk
Aantal kamers: 3
Slaapkamers: 2
Woonoppervlakte: ca. 75.2 m²
Balkon: 3.9 m²
Berging: 3.6 m²
Inhoud: ca. 245 m³
Parkeren: Openbaar, gratis
Kadaster: Gemeente Dordrecht, sectie M nummer 1769 A-61
Energielabel: B
Verwarming: Blokverwarming, Boiler
Elektra: 7 groepen, 3 fasen kookgroep, 1 hoofdschakelaar
Bijdrage VvE: € 239,03 per maand (inclusief € 112,- voorschot verwarming)
Oplevering: In overleg, kan spoedig
AFMETINGEN
Eerste woonlaag
- Hal: ca. 2.56 x 2.70 m;
- Slaapkamer 1: ca. 2.89 x 5.32 m;
- Slaapkamer 2: ca. 1.93 x 3.60 m;
- Hal voor slaapkamer 2: ca. 0.90 x 1.62 m;
- Badkamer: ca. 2.12 x 1.70 m;
- Toilet: ca. 1.07 x 0.90 m.
Tweede woonlaag
- Woonkamer: ca. 4.90 x 6.72 / 4.02 m;
- Keuken: ca. 2.80 x 2.62 m;
- Berging: ca. 1.79 x 1.30 m;
- Balkon (zuidwest): ca. 3.08 x 1.30 m.
Berging / begane grond
- Berging: ca. 1.80 x 2.00 m.
Disclaimer
Nadrukkelijk vermelden wij dat deze informatieverstrekking niet als een aanbieding of offerte mag worden beschouwd. Aan deze gegevens kunnen derhalve geen rechten worden ontleend en zijn wijzigingen voorbehouden.
De vermelde afmetingen/ oppervlakten in deze informatie zijn gemeten op basis van de BBMI (Branche Brede Meetinstructie). De meetinstructie is bedoeld om een meer eenduidige manier van meten toe te passen voor het geven van een indicatie van de gebruiksoppervlakte. De meetinstructie sluit verschillen in meetuitkomsten niet volledig uit, door bijvoorbeeld interpretatieverschillen, afrondingen of beperkingen bij het uitvoer en van de meting.
Let op: een aantal foto’s in deze verkooppresentatie zijn genomen met een groothoeklens. Voor verkrijging van een reële indruk van de ruimten dient u de foto’s te spiegelen aan de vermelde afmetingen.
Indien er plattegronden aan deze brochure zijn toegevoegd, houdt u er dan rekening mee dat deze plattegronden slechts een indicatie geven van de indeling.
Heeft u als geïnteresseerde deze woning bezichtigd met In Dordrecht Makelaardij, dan willen wij u graag verzoeken om ons binnen 3 werkdagen een reactie te geven.
In Dordrecht Makelaardij verlangt bij een verkooptransactie dat de kopende partij t.b.v. de verkopende partij via de notaris een bankgarantie stelt c.q. waarborgsom stort ter grootte van 10% van de koopsom kosten koper. Dit ter meerdere zekerheid tot nakoming van de verplichtingen die voortvloeien uit de koopakte voor de kopende partij.