Beschrijving
Aantrekkelijke 5-kamer hoekwoning mét garage op gewilde locatie in Dubbeldam.
Deze hoekwoning is aan de achterzijde uitgebouwd, wat zorgt voor extra leefruimte en een praktische indeling. De begane grond beschikt over een open keuken met aansluitend een handige bijkeuken. Via de aluminium schuifpui staat de woonkamer in direct contact met de besloten achtertuin. Aan de voorzijde heeft u een prettig uitzicht.
Op de verdiepingen zijn er maar liefst vier slaapkamers, waardoor deze woning uitermate geschikt is voor gezinnen.
Parkeren is eenvoudig dankzij de carport direct naast de woning, waardoor u altijd verzekerd bent van een eigen parkeerplek.
De Laurierstraat ligt centraal in de populaire wijk Dubbeldam dicht bij alle voorzieningen. Het gezellige Damplein met de supermarkten en buurtwinkels, diverse scholen, de sportclubs en het natuurgebied De Nieuwe Dordtse Biesbosch liggen in de directe nabijheid.
INDELING
Begane grond
Hal met meterkast en garderobe, toilet, trap naar de eerste verdieping en deur naar het woongedeelte. De garderobe is handig weggewerkt onder de trap.
Het ruime toilet is half betegeld en heeft een fonteintje.
U stapt binnen in de ruime en lichte woonkamer. Het extra raam in de zijgevel zorgt voor een fijne lichtinval. De open haard geeft extra sfeer aan deze ruimte.
De begane grond is aan de achterzijde uitgebouwd waardoor er een royale woonkamer is ontstaan. Via de aluminium schuifpui staat de woonkamer in directe verbinding met de achtertuin, waardoor binnen en buiten naadloos in elkaar overlopen en u optimaal kunt genieten van licht en ruimte.
De open keuken aan de achterzijde van de woning is functioneel en is voorzien van een 4-pits gaskookplaat met afzuigkap, oven, vaatwasser en een koel-/vriescombinatie.
Aansluitend bevindt zich de praktische bijkeuken met wasmachineaansluiting en extra bergruimte.
Vanuit de gang bereikt u via de trap de eerste verdieping.
1e verdieping
Deze etage heeft 3 slaapkamers, een badkamer en een diepe bergkast.
Slaapkamers 1 en 2 bevinden zich aan de achterzijde van de woning. Beide kamers hebben een prettig zicht op de tuin. Slaapkamer 1 is de ‘master bedroom’. Het is een fijne en lichte kamer met een grote vaste inbouwkast. Slaapkamer 2 is kleiner van formaat, maar uitstekend geschikt als slaap-, werk- of kinderkamer.
Slaapkamer 3 ligt aan de voorzijde. De grote raampartij zorgt voor veel licht en ook hier bevindt zich een vaste kast.
De badkamer is geheel betegeld en uitgerust met een douche, toilet, wastafelmeubel en extra kast. Het raam zorgt voor een prettige natuurlijke lichtinval.
Via de open trap bereikt u de 2e verdieping.
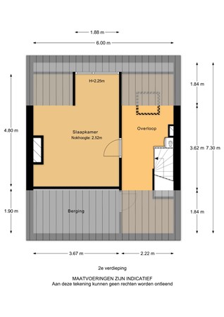
2e verdieping
Op de overloop is de CV ketel geplaatst. Het grote Velux dakraam zorgt voor veel licht in deze ruimte. Er is extra bergruimte gecreëerd onder het schuine gedeelte van het dak.
Via de deur bereikt u slaapkamer 4, een grote zolderkamer met 2 inbouwkasten. Door de dakkapel is er veel extra ruimte ontstaan. U heeft mooi zicht over de tuin en de omgeving.
Buiten
De heerlijke achtertuin ligt op het noordoosten en is omheind. De tuin is gedeeltelijk bestraat en er staan veel vaste planten en struiken, waaronder een prachtige Magnolia.
De garage, voorzien van elektra, wordt momenteel gebruikt als berging maar is ook ideaal als hobbyruimte.
Direct naast de woning kunt u uw auto kwijt onder de carport en via de poort loopt u door naar de achtertuin.
De voortuin is keurig aangelegd en voorzien van een grote stenen plantenbak met vaste beplanting. Aan de voorzijde van de woning bevinden zich een elektrisch bedienbaar zonnescherm en een buitenkraan.
Ligging
Deze woning ligt in de populaire wijk Dubbeldam. Een fijne plek om te wonen! Dichtbij alle voorzieningen, zoals scholen, sportverenigingen, het gezellige Damplein met een divers aanbod van winkels. Daarnaast is de N3 met aansluiting op de A15/A16 snel bereikbaar.
KENMERKEN
Soort woning: Eengezinswoning
Bouwsoort: Hoekwoning
Bouwjaar: 1969
Ligging: In woonwijk, Dubbeldam
Woonoppervlakte: ca. 121 m²
Perceeloppervlakte: 218 m²
Inhoud: ca. 425 m³
Aantal kamers: 5
Slaapkamers: 4
Parkeren: Eigen terrein en openbaar (gratis)
Garage/berging: ca. 18 m²
Energielabel: D
CV-Ketel: Remeha Avanta (2012)
Elektra: 4 groepen en 1 aardlekschakelaar
Internet/TV: Glasvezelaansluiting
Kadaster: Dubbeldam, A 5830
Oplevering: In overleg
AFMETINGEN
Begane grond
- Hal: ca. 2.20 x 4.28 m;
- Toilet: ca. 1.20 x 0.90 m;
- Woonkamer: ca. 3.63 x 8.7 m;
- Keuken: ca. 2.23 x 3.04 m;
- Bijkeuken: ca. 2.23 x 1.94 m.
Eerste verdieping
- Overloop: ca. 5.6 m²;
- Slaapkamer 1: ca. 3.63 x 3.80 m;
- Slaapkamer 2: ca. 2.22 x 2.65 m;
- Slaapkamer 3: ca. 3.63 x 3.42 m;
- Badkamer: ca. 2.22 x 1.48 m.
Tweede verdieping
- Overloop: ca. 2.22 x 3.62 m** ;
- Slaapkamer 4: ca. 3.67 x 4.80/ 2.96 m**.
** gemeten vanaf 1.50 m hoogte
Buiten
- Achtertuin (noordoost): ca. 9.30 x 10.90 m (inclusief garage);
- Voortuin (zuidwest): ca. 9.30 x 2.50 m;
- Zijtuin (west): ca. 2.90 x 9.45 m;
- Garage/berging: ca. 3.05 x 5.86 m.
Disclaimer
Nadrukkelijk vermelden wij dat deze informatieverstrekking niet als een aanbieding of offerte mag worden beschouwd. Aan deze gegevens kunnen derhalve geen rechten worden ontleend en zijn wijzigingen voorbehouden. De vermelde afmetingen/ oppervlakten in deze informatie zijn gemeten op basis van de BBMI (Branche Brede Meetinstructie). De meetinstructie is bedoeld om een meer eenduidige manier van meten toe te passen voor het geven van een indicatie van de gebruiksoppervlakte. De meetinstructie sluit verschillen in meetuitkomsten niet volledig uit, door bijvoorbeeld interpretatieverschillen, afrondingen of beperkingen bij het uitvoer en van de meting. Let op: een aantal foto’s in deze verkooppresentatie zijn genomen met een groothoeklens. Voor verkrijging van een reële indruk van de ruimten dient u de foto’s te spiegelen aan de vermelde afmetingen.
Indien er plattegronden aan deze brochure zijn toegevoegd, houdt u er dan rekening mee dat deze plattegronden slechts een indicatie geven van de indeling. Heeft u als geïnteresseerde deze woning bezichtigd met In Dordrecht Makelaardij, dan willen wij u graag verzoeken om ons binnen 3 werkdagen een reactie te geven. In Dordrecht Makelaardij verlangt bij een verkooptransactie dat de kopende partij t.b.v. de verkopende partij een bankgarantie stelt c.q. waarborgsom stort ter grootte van 10% van de koopsom kosten koper. Dit ter meerdere zekerheid tot nakoming van de verplichtingen die voortvloeien uit de koopakte voor de kopende partij.