Beschrijving
Prettig wonen aan de rand van het geliefde en kindvriendelijke Joke Smit-erf!
Deze keurig onderhouden woning ligt in de wijk Stadspolders en heeft 4 slaapkamers. De woning ligt in een rustig hofje en de verzorgde achtertuin ligt gunstig op het westen.
Op een steenworp afstand ligt de Noordendijk. Hier kunt u heerlijk wandelen en fietsen. Deze dijk geeft toegang tot de natuurgebieden. U bent op loopafstand van diverse basisscholen, de winkels, Station Stadspolders en de bushalte.
UITGELICHT
• 5 kamer woning
• Keurig onderhouden
• Rustig gelegen in hofje
• Tuin op het westen
• 8 zonnepanelen (2020)
• Schilderwerk buiten (2023)
• Nabij alle voorzieningen
Begane grond
De hal met garderobe en meterkast geeft toegang tot het woongedeelte. De plavuizen vloer loopt vanuit de hal door naar de keuken.
De woonkamer is voorzien van een parketvloer (eiken) en het plafond is strak gestuukt. Door het vergrootte raam aan de achterzijde is er veel lichtopbrengst en is de tuin een onderdeel geworden van de woonbeleving. Via de woonkamer is deze diepe achtertuin bereikbaar. Aan de voorzijde van de woning bevindt zich de keuken.
Deze open keuken is voorzien van een spoeleiland. De hardstenen werkbladen en massief houten deuren (eiken) zijn erg praktisch en geven de keuken een robuuste en kwalitatieve uitstraling. Uiteraard is deze keuken van alle gemakken voorzien; de apparatuur is van Siemens en er wordt momenteel op gas gekookt. Door het grote raam aan de voorzijde heeft u een prettig uitzicht op het groene hofje.
Vanuit de woonkamer bereikt u een afgesloten halletje met modern toilet (2020). De trap brengt u naar de eerste verdieping.
1e verdieping
Op deze verdieping zijn 3 slaapkamers en een badkamer.
Slaapkamer 1 bevindt zich aan de voorzijde van de woning en staat middels een schuifdeur in verbinding met slaapkamer 2 aan de achterzijde. Deze 2e slaapkamer is voorzien van een dakraam en heeft een handige berging.
Slaapkamer 3 is aan de achterzijde gelegen. Deze kamer heeft een groot dakraam en een vaste kast. Er is tevens bergruimte “achter de schotten”.
De badkamer is ruim en netjes onderhouden. Er is een douche, een wastafelmeubel en een 2e toilet. De mechanische ventilatie en het raam zorgen voor voldoende ventilatie.
2e verdieping
Op de tweede verdieping heeft u een ruime overloop. Hier bevindt zich de CV en de wasmachine. Daarnaast is er voldoende ruimte voor het opbergen van uw spullen; deze praktisch ruimte loopt door naar slaapkamer 4.
De prima 4e slaapkamer is speels en heeft een groot dakraam aan de achterzijde van de woning. Wie wil hier niet slapen ?!
De tuin
De voortuin is netjes onderhouden. De borders met onder meer siergras en taxus geven een natuurlijke uitstraling. Er is een zonnescherm, elektra voorziening en een watertappunt.
De hoofdtuin bevindt zich aan de achterzijde. Doordat deze tuin op het westen ligt kunt u op de terrassen heerlijk genieten van de zon of schaduw. Deze verzorgde tuin heeft grote grijze tegels en er zijn diverse struiken en vaste planten waarbij de afvalcontainers netjes uit het zicht zijn.
De tuin heeft een stenen berging en is voorzien van elektra. Er is tevens een wateraansluiting. Het zonnescherm is over de volle breedte van de woning geplaatst. De tuin heeft een achterom.
De ligging
Op loopafstand zijn de winkels aan het Pearl Buck-erf en Winkelcentrum Bieshof bereikbaar. Diverse basisscholen zijn in de directe omgeving. Station Stadspolders en de bushalte zijn eveneens in de nabijheid. De natuur begint bij de Noordendijk. Daar kunt u heerlijk wandelen en fietsen. Via de dijk bent u zo in de Dordtse Biesbosch!
KENMERKEN
Type woning: Eengezinswoning, tussenwoning
Aantal kamers: 5
Aantal slaapkamers: 4
Bouwjaar: 1984
Ligging tuin: West (met achterom)
Gebruikersoppervlakte: ca. 112.5 m²
Perceel: 135 m²
Inhoud: ca. 365 m³
Berging: 6 m² (steen)
Locatie: Stadspolders, in woonwijk, aan buitenrand
Elektra: 6 groepen, 1 aardlekschakelaar
Zonnepanelen: 8 stuks (2020)
Internet / TV: Glasvezel aansluiting
Verwarming: Gas, Remeha Avanta (2007)
Parkeren: Openbaar (gratis)
Kadaster: Dordrecht, sectie Y, nummer 927
Oplevering: 3e kwartaal 2026 / in overleg
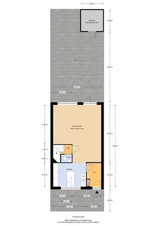
AFMETINGEN
Begane grond
- Hal: ca. 1.65 x 2.70 m;
- Woonkamer: ca. 5.47/3.28 x 6.52/4.48 m;
- Keuken: ca. 3.75 x 2.70 m.
- Hal 2: ca. 1 m²;
- Toilet: ca. 1.23 x 0.89 m.
Eerste verdieping
- Overloop: ca. 2 m²;
- Slaapkamer 1: ca. 3.27 x 4.78 m;
- Slaapkamer 2: ca. 2.70 x 2.82 m;*
- Slaapkamer 3: ca. 2.70 x 2.82 m;*
- Badkamer: ca. 2.13 x 2.70 m.
*gemeten vanaf 1.50 m hoogte.
Tweede verdieping
- Overloop: ca. 2.70/1.62 x 3.40 m;*
- Slaapkamer 4: ca. 3.76/2.70 x 3.40 m;*
*gemeten vanaf 1.50 m hoogte.
Buiten
- Voortuin (oost): ca. 5.47 x 2.50 m;
- Achtertuin (west): ca. 5.47 x 10.40 m (inclusief berging);
- Berging: ca. 2.50 x 2.40 m.
Disclaimer
Nadrukkelijk vermelden wij dat deze informatieverstrekking niet als een aanbieding of offerte mag worden beschouwd. Aan deze gegevens kunnen derhalve geen rechten worden ontleend en zijn wijzigingen voorbehouden.
De vermelde afmetingen/ oppervlakten in deze informatie zijn gemeten op basis van de BBMI (Branche Brede Meetinstructie). De meetinstructie is bedoeld om een meer eenduidige manier van meten toe te passen voor het geven van een indicatie van de gebruiksoppervlakte. De meetinstructie sluit verschillen in meetuitkomsten niet volledig uit, door bijvoorbeeld interpretatieverschillen, afrondingen of beperkingen bij het uitvoer en van de meting.
Let op: een aantal foto’s in deze verkooppresentatie zijn genomen met een groothoeklens. Voor verkrijging van een reële indruk van de ruimten dient u de foto’s te spiegelen aan de vermelde afmetingen.
Indien er plattegronden aan deze brochure zijn toegevoegd, houdt u er dan rekening mee dat deze plattegronden slechts een indicatie geven van de indeling.
Heeft u als geïnteresseerde deze woning bezichtigd met In Dordrecht Makelaardij, dan willen wij u graag verzoeken om ons binnen 3 werkdagen een reactie te geven.
In Dordrecht Makelaardij verlangt bij een verkooptransactie dat de kopende partij t.b.v. de verkopende partij een bankgarantie stelt c.q. waarborgsom stort ter grootte van 10% van de koopsom kosten koper. Dit ter meerdere zekerheid tot nakoming van de verplichtingen die voortvloeien uit de koopakte voor de kopende partij.