Beschrijving
--- Door de overweldigende belangstelling is het niet meer mogelijk direct een bezichtiging te plannen. Als u uw gegevens doorstuurt naar IN DORDRECHT MAKELAARDIJ dan wordt u op de reservelijst geplaatst ---
Leuke en ruime eengezinswoning met maar liefst 5 slaapkamers, een tuingerichte woonkamer mét ruime overkapping aan de achterzijde, een nette keuken, bijkeuken en moderne badkamer (2024). De zonnige achtertuin is op het zuidwesten gericht. En heel fijn: parkeren kan op eigen terrein aan de voorzijde van de woning.
Kortom een zeer aantrekkelijke woning in de kindvriendelijke wijk Sterrenburg 3 met alle voorzieningen en recreatiemogelijkheden in de directe nabijheid.
INDELING
Begane grond
De hal met meterkast, garderobe en toegang tot de handige bijkeuken met opstelplaats voor wasmachine en droger. Deze bijkeuken is voorzien van veel opbergruimte, een combi-oven en koel/vriescombinatie. Boven de bijkeuken is extra bergruimte beschikbaar. Deze is via een vlizotrap bereikbaar.
Deur naar de woonkamer en open keuken.
De open keuken ligt aan de voorzijde van de woning en is in een u-vorm geplaatst. Deze keuken is voorzien van veel bergruimte, een 5 pits gasplaat incl. wokbrander, afzuigkap, oven, vaatwasser en een grote koelkast met vriesgedeelte. Er is een handige voorraadkast onder de trap.
De woonkamer is tuingericht en via de tuindeur stapt u de zonnige achtertuin in. Aan de woning is een grote overkapping gemaakt waar het tot in de late uurtjes heerlijk genieten is!
Deur naar tussenhal met toilet en vaste trap naar eerste verdieping.
Het toilet is geheel betegeld en voorzien van een fonteintje.
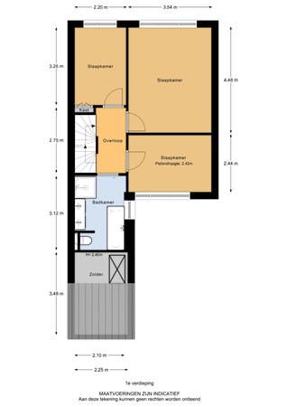
Eerste verdieping
Overloop met toegang tot 3 slaapkamers en de badkamer.
Slaapkamer 1 is een grote slaapkamer en ligt aan de achterzijde van de woning. Het schuin weglopende plafond geeft een speelse en ruimtelijke beleving aan deze ruimte.
Slaapkamer 2 ligt ook aan de achterzijde van de woning. Ook in deze kamer dezelfde ruimtelijke beleving als slaapkamer 1. Er is een handige inbouwkast en een rolluik (handbediend) in deze kamer.
Slaapkamer 3 ligt aan de voorzijde van de woning. Let op : de ramen in de kamer zijn nog enkelglas.
De moderne badkamer is in 2024 geplaatst en heeft een ligbad, douchecabine met regendouche en handdouche, wastafelmeubel met 2 kranen en verwarmde spiegel, een hangcloset en extra kastruimte. De inbouwspots zorgen voor een sfeervolle belichting. De badkamer is geheel betegeld en de vloer is afgewerkt met epoxy.
Open trap naar de tweede verdieping met toegang tot slaapkamer 4 en 5.
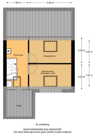
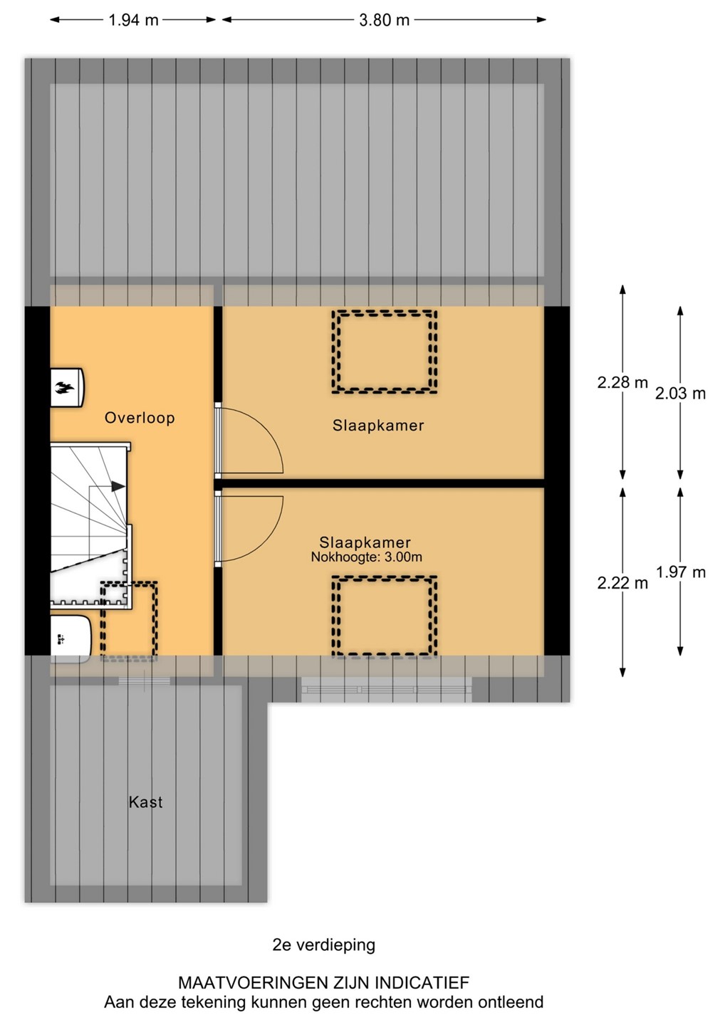
Tweede verdieping
Overloop met opstelplaats CV, mechanische afzuiging en ook hier een aansluiting voor de wasmachine aanwezig. Er is een Velux dakraam.
Onder de schuine wand is extra bergruimte gemaakt en er is op deze overloop een wastafelmeubel.
Slaapkamer 4 ligt aan de achterzijde van de woning. Er is een groot Velux dakraam voorzien van een rolhor/plissé gordijn.
Slaapkamer 5 ligt aan de voorzijde van de woning en gespiegeld aan slaapkamer 4. Ook hier is een groot Velux dakraam voorzien van een rolhor/plissé gordijn. Deze kamer heeft nog een extra raam.
Buiten
De achtertuin is gunstig gelegen op het zuidwesten en vrijwel geheel betegeld. Direct aan de woning is een overkapping gemaakt met een vlonderterras. De lichtdoorlatende platen aan de bovenzijde zorgen voor lichtinval naar binnen. De overkapping is in delen afsluitbaar met op maat gemaakte zeildoeken. Hierdoor is dit een heerlijke plek om al vroeg in het voorjaar tot in het late najaar te kunnen genieten. Er is een elektrisch bedienbaar zonnescherm aanwezig dat precies onder de overkapping valt en een buitenkraan.
Achter in de tuin staat een houten berging. Deze berging is voorzien van elektra.
Er is een achterom en de tuin loopt nog een stukje door achter de poort tot de mooie leibomen. Hier wordt recht van overpad verleend aan de buren die aan de linkerzijde wonen.
De achtertuin grenst aan een grasveldje en klein speeltuintje.
De voortuin ligt op noordoosten en is geheel bestraat. U kunt hier de eigen auto bij de woning parkeren en er is een buitenkraan aanwezig. Aan de voorzijde heeft de huidige eigenaar, samen met een aantal buren, een stukje gemeenteplantsoen geadopteerd. Een leuk buurt initiatief! Het is voor de toekomstige nieuwe eigenaar mogelijk om hier aan mee te doen, maar geen verplichting. Wel een leuke manier om de buren snel beter te leren kennen!
De ligging
De kindvriendelijke woonwijk Cannenburg ligt aan de rand van Sterrenburg 3. Hierdoor is de natuur met onder meer de Nieuwe Dordtse Biesbosch direct bereikbaar. Het sportpark Schenkeldijk is ook op loopafstand. Het openbaar vervoer, diverse winkels en basisscholen zijn in de directe nabijheid. Sterrenburg heeft toegang tot N3, welke aansluit op de A16.
KENMERKEN
Soort woning: Eengezinswoning
Type: Tussenwoning
Bouwjaar: 1980
Ligging: In woonwijk
Woonoppervlakte: ca. 123,4 m²
Perceeloppervlakte: 149 m²
Inhoud: ca. 465 m³
Aantal kamers: 6
Slaapkamers: 5
Badkamers: 1
Kadaster: Gemeente Dordrecht, sectie Q nummers 8902
Energielabel: B
Verwarming: CV: Remeha Avanta (2012)
Elektra: 5 groepen, 1 aardlekschakelaar, 1 hoofdschakelaar
Glasvezel aansluiting
Buiten: Achtertuin op het zuidwesten, voortuin op het noordoosten
Parkeren: op eigen terrein en openbaar parkeren
Oplevering: In overleg (voorkeur: begin september 2025)
AFMETINGEN
Begane Grond
- Entree: ca. 3 m²;
- Bijkeuken: ca. 2.25 x 3.48 m;
- Berging boven bijkeuken : ca. 2.9 m²;
- Hal: ca. 0.90 x 1.33 m;
- Toilet: ca. 0.90 x 1.40 m;
- Woonkamer: ca. 5.80 x 6.96/4.20 m;
- Keuken: ca. 2.50 x 2.70 m.
Eerste verdieping
- Overloop: ca. 3,5 m²;
- Slaapkamer 1: ca. 3.54 x 4.48 m;
- Slaapkamer 2: ca. 2.20 x 3.26 m;
- Slaapkamer 3: ca. 3.54 x 2.44 m;
- Badkamer: ca. 2.20 x 3.12 m.
Tweede verdieping
- Overloop: ca. 1.94 x 2.03 m**;
- Slaapkamer 4: ca. 3.80 x 2.03 m**;
- Slaapkamer 5: ca. 3.80 x 1.97 m**.
** gemeten vanaf 1.50 m hoogte
Buiten
- Voortuin (NO): ca. 4.15 x 6.60 m;
- Achtertuin (ZW): ca. 6.40 x 9.00 m (inclusief overkapping);
- Overkapping: ca. 6.40 x 2.00 m;
- Tuinhuis: ca. 2.4 m².
Disclaimer
Nadrukkelijk vermelden wij dat deze informatieverstrekking niet als een aanbieding of offerte mag worden beschouwd. Aan deze gegevens kunnen derhalve geen rechten worden ontleend en zijn wijzigingen voorbehouden.
De vermelde afmetingen/ oppervlakten in deze informatie zijn gemeten op basis van de BBMI (Branche Brede Meetinstructie). De meetinstructie is bedoeld om een meer eenduidige manier van meten toe te passen voor het geven van een indicatie van de gebruiksoppervlakte. De meetinstructie sluit verschillen in meetuitkomsten niet volledig uit, door bijvoorbeeld interpretatieverschillen, afrondingen of beperkingen bij het uitvoer en van de meting.
Let op: een aantal foto’s in deze verkooppresentatie zijn genomen met een groothoeklens. Voor verkrijging van een reële indruk van de ruimten dient u de foto’s te spiegelen aan de vermelde afmetingen.
Indien er plattegronden aan deze brochure zijn toegevoegd, houdt u er dan rekening mee dat deze plattegronden slechts een indicatie geven van de indeling.
Heeft u als geïnteresseerde deze woning bezichtigd met In Dordrecht Makelaardij, dan willen wij u graag verzoeken om ons binnen 3 werkdagen een reactie te geven.
In Dordrecht Makelaardij verlangt bij een verkooptransactie dat de kopende partij t.b.v. de verkopende partij via de notaris een bankgarantie stelt c.q. waarborgsom stort ter grootte van 10% van de koopsom kosten koper. Dit ter meerdere zekerheid tot nakoming van de verplichtingen die voortvloeien uit de koopakte voor de kopende partij.