Beschrijving
Comfortabel wonen op Dubbeldam! Deze keurig onderhouden 5 kamer woning ligt in de geliefde wijk Burgemeester Beelaertspark. Naast de 4 prima slaapkamers is er een wasruimte en een groot dakterras beschikbaar.
De prettige en lichte woonkamer sluit middels de schuifpui aan op de diepe achtertuin; hier ervaart u de groene omgeving met veel privacy. De moderne open keuken bevindt zich aan de voorzijde van de woning. De eerste verdieping heeft 3 prima slaapkamers, een badkamer en een los toilet. De tweede verdieping heeft nog een zeer grote slaapkamer, een wasruimte en een zonnig dakterras. Het energielabel is A+.
Burgemeester Beelaertspark ligt centraal in de populaire wijk Dubbeldam. De basisscholen zijn allen op loopafstand. Het gezellige Damplein met de supermarkten en buurtwinkels, diverse middelbare scholen, de sportclubs en het natuurgebied de Nieuwe Dordtse Biesbosch liggen eveneens in de directe nabijheid.
UITGELICHT
• Diepe tuin met veel privacy
• Zonnig dakterras
• Energielabel A+
• Airco-units in 2 slaapkamers
• 11 zonnepanelen
• Veel voorzieningen in directe omgeving
INDELING
Begane grond
De entree met meterkast geeft toegang tot de hal. Via deze hal bereikt u het toilet, de trap naar de tweede verdieping en het woongedeelte.
De woonkamer beslaat de volle breedte van de woning. Hierdoor is er veel lichtinval en heeft u goed zicht op de tuin; deze is middels de aluminium schuifpui bereikbaar. De vloer is voorzien van eikenhouten vloerdelen en zorgt voor een warme uitstraling. Er is een handige berging onder de trap en de grote eettafel verbindt het zitgedeelte met de keuken.
De open keuken is geplaatst in een L-opstelling en heeft daardoor veel werkruimte. Het natuurstenen blad geeft een robuuste en kwalitatief hoogwaardige uitstraling. Daarnaast springt het extra brede SMEG fornuis (5 pits inductie) met oven direct in het oog. De “Amerikaanse koelkast” is los geplaatst en blijft achter. De vaatwasser, magnetron en stoomoven zijn allen van Siemens. De Quooker is in 2025 geplaatst.
De trappen zijn netjes afgewerkt met laminaat en brengen u naar de verdiepingen.
1e verdieping
Op deze verdieping zijn 3 slaapkamers, een badkamer en een toilet. De laminaat vloer loopt netjes door en de slaapkamers zijn allen voorzien van een hor.
Slaapkamer 1 bevindt zich aan de voorzijde en beslaat de volledige breedte van de woning. Deze “master bedroom” is voorzien van een airco unit.
Slaapkamer 2 is erg ruim en heeft een mooi zicht op het groen aan de achterzijde van de woning.
Slaapkamer 3 is een prima slaapkamer en is eveneens aan de achterzijde gelegen.
De badkamer is voorzien van een ruime inloopdouche met rainshower en drain, een ligbad, een wastafelmeubel en een bijpassende kast. De natuurstenen vloer wordt middels vloerverwarming verwarmd.
Het tweede toilet is uitgevoerd in de stijl van de badkamer en beschikt over een fonteintje.
2e verdieping
Op de tweede verdieping vindt u een ruime slaapkamer, een dakterras en een waskamer.
Slaapkamer 4 is ruim bemeten en heeft aan twee zijdes lichtinval. Deze kamer wordt ook wel “studio” genoemd.
Dit riante dakterras is gelegen op het zuiden; hier is het in het voor- en najaar al heerlijk genieten van de zon. Via de overloop is het dakterras bereikbaar.
De wasruimte biedt naast ruimte voor de wasmachine en droger ook plek voor de CV installatie, Warmte Terugwin Installatie (WTW) en de omvormer van de zonnepanelen. Daarnaast is er extra bergruimte beschikbaar.
De tuin
De voortuin is netjes aangelegd. De klinkers en de groene borders vormen een mooi geheel. De hortensia’s en de boompjes zorgen voor de groene accenten.
In de diepe achtertuin ervaart u veel rust en privacy. De ligging is noord en u heeft daar in de zomermaanden altijd een plek in de zon. De tuin is grotendeels voorzien van klinkers en kunstgras. De perenboom geeft in een goed jaar veel fruit. De stenen berging is voorzien van elektra. Deze tuin heeft een achterom, elektra en een watertappunt.
De ligging
Burgemeester Beelaertspark ligt centraal in de populaire wijk Dubbeldam. De basisscholen zijn allen op loopafstand bereikbaar. Het gezellige Damplein met de supermarkten en buurtwinkels, diverse middelbare scholen, de sportclubs en het natuurgebied De Nieuwe Dordtse Biesbosch liggen in de directe nabijheid. De N3 is snel bereikbaar; deze sluit aan op de A16 richting Rotterdam of Breda. Met de fiets bent u in 12 minuten bij het NS Centraal Station.
KENMERKEN
Type woning: Eengezinswoning, tussenwoning
Aantal kamers: 5
Aantal slaapkamers: 4
Waskamer: 1
Bouwjaar: 2000
Ligging voortuin: Zuid
Ligging achtertuin: Noord (met achterom)
Dakterras: 14 m² (Zuid)
Gebruikersoppervlakte: ca. 136 m²
Perceel: 153 m²
Inhoud: ca. 435 m³
Berging: 5.5 m² (steen)
Locatie: Dubbeldam, in woonwijk
Elektra: 11 groepen, 3 aardlek- en 1 hoofdschakelaar
Internet / TV: Glasvezel aansluiting
Verwarming: Gas, Remeha Avanta (2014)
WTW: Itho Daalderop (2016)
Airco: 2x (Daikin, 2023)
Zonnepanelen: 11x (2021)
Kadaster: Dubbeldam, sectie A, nummer 8042
Energielabel: A+
Oplevering: In overleg / juli 2026
AFMETINGEN
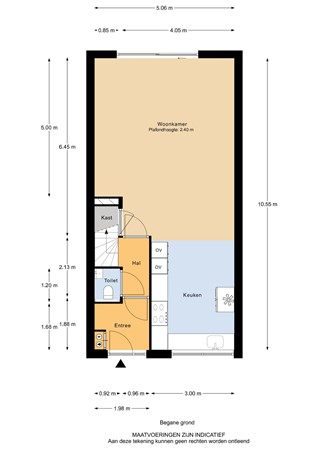
Begane grond
- Entree: ca. 1.98 x 1.68/1.88 m;
- Hal: ca. 0.96 x 2.13 m;
- Toilet: ca. 0.92 x 1.20 m;
- Woonkamer: ca. 5.06 x 6.45 m;
- Keuken: ca. 3.00 x 4.01 m.
Eerste verdieping
- Overloop: ca. 1.09 x 3.80 m;
- Slaapkamer 1: ca. 5.06 x 2.88 m;
- Slaapkamer 2: ca. 2.87 x 5.28 m;
- Slaapkamer 3: ca. 2.08 x 3.72 m;
- Badkamer: ca. 2.87 x 2.18 m;
- Toilet: ca. 0.90 x 1.20 m.
Tweede verdieping
- Overloop: ca. 2.5 m²;
- Slaapkamer 4: ca. 2.98/1.92 x 4.58/6.50 m (“studio”);
- Wasruimte/berging: ca. 1.98 x 3.62 m;
- Dakterras: ca. 5.40 x 2.60 m.
Buiten
- Voortuin (zuid): ca. 5.06 x 5.60 m;
- Achtertuin (noord): ca. 5.06 x 10.90 m (inclusief berging);
- Berging: ca. 2.80 x 2.00 m.
Disclaimer
Nadrukkelijk vermelden wij dat deze informatieverstrekking niet als een aanbieding of offerte mag worden beschouwd. Aan deze gegevens kunnen derhalve geen rechten worden ontleend en zijn wijzigingen voorbehouden.
De vermelde afmetingen/ oppervlakten in deze informatie zijn gemeten op basis van de BBMI (Branche Brede Meetinstructie). De meetinstructie is bedoeld om een meer eenduidige manier van meten toe te passen voor het geven van een indicatie van de gebruiksoppervlakte. De meetinstructie sluit verschillen in meetuitkomsten niet volledig uit, door bijvoorbeeld interpretatieverschillen, afrondingen of beperkingen bij het uitvoer en van de meting.
Let op: een aantal foto’s in deze verkooppresentatie zijn genomen met een groothoeklens. Voor verkrijging van een reële indruk van de ruimten dient u de foto’s te spiegelen aan de vermelde afmetingen. Indien er plattegronden aan deze brochure zijn toegevoegd, houdt u er dan rekening mee dat deze plattegronden slechts een indicatie geven van de indeling.
Heeft u als geïnteresseerde deze woning bezichtigd met In Dordrecht Makelaardij, dan willen wij u graag verzoeken om ons binnen 3 werkdagen een reactie te geven.
In Dordrecht Makelaardij verlangt bij een verkooptransactie dat de kopende partij t.b.v. de verkopende partij een bankgarantie stelt c.q. waarborgsom stort ter grootte van 10% van de koopsom kosten koper. Dit ter meerdere zekerheid tot nakoming van de verplichtingen die voortvloeien uit de koopakte voor de kopende partij.