Beschrijving
Rustig gelegen 5 kamer hoekwoning met een heerlijke ruime tuin in Dubbeldam!
Van Eedenstraat 1 is op de begane grond uitgebouwd, waardoor er een lichte en ruime woonkamer is ontstaan met open keuken. Langs de woning is een oprit voor een of meerdere auto’s. De tweede grote berging in de tuin kan worden omgebouwd als garage.
De woning verdient nog extra aandacht maar er zijn al een aantal zaken onder handen genomen. Er zijn 12 zonnepanelen en er is een dakkapel op de 2e verdieping. Alle kozijnen zijn van kunststof en voorzien van dubbel glas (de voordeur is van hout). De badkamer is netjes. De CV ketel is uit 2020 en de woning heeft energielabel B.
Dubbeldam is een populaire wijk om te wonen. Diverse basisscholen, het gezellig Damplein met de diverse winkels, het zwembad en de sportvelden zijn in de directe omgeving. De uitvalsweg N3 is snel bereikbaar. Deze sluit aan op de A16 en A15.
INDELING
Begane grond
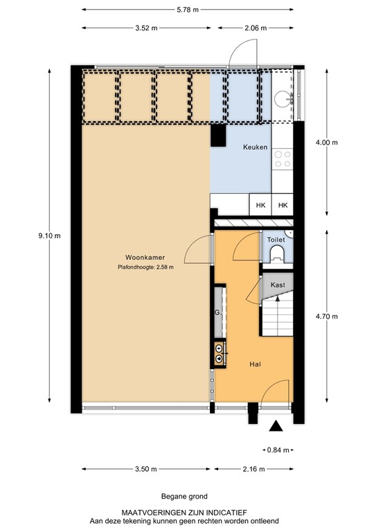
Hal met garderobe, meterkast, trapkast, toilet en trap naar eerste verdieping.
Lichte woonkamer met open keuken. De woonkamer is uitgebouwd (1994) waarbij de uitbouw aan de bovenzijde afgewerkt is met lichtdoorlatende panelen; hierdoor is er een lichte ruimte ontstaan. Via de schuifpui aan de achterzijde bereikt u de heerlijke achtertuin.
Aan de voorzijde is een elektrisch bedienbaar zonnescherm. Aan de achterzijde, bij de keuken, zijn elektrisch bedienbare screens.
De open keuken heeft zijn beste tijd gehad. Momenteel is deze voorzien van een inductie kookplaat, afzuigkap, koel/vries combinatie, ronde spoelbak en een 10 liter close-in boiler (Daalderop, momenteel defect). Er is een airco-unit in de keuken geplaatst (de afstandsbediening is kwijt maar kan worden besteld bij Chico).
Via de trap bereikt u de 1e verdieping.
1e verdieping
Overloop met vaste kast en toegang tot 3 slaapkamers en de badkamer.
Slaapkamer 1 ligt aan de voorzijde van de woning. Er is een groot raam over de volledige breedte van de kamer dat zorgt voor veel licht. Er zijn 2 vaste kasten en er is een wastafel.
Slaapkamer 2 ligt ook aan de voorzijde van de woning. Deze kamer is kleiner van formaat, maar een prima slaapkamer.
Slaapkamer 3 ligt aan de achterzijde van de woning. Ook hier is een raam over de volledige breedte van de kamer. En superhandig zijn ook weer de twee inbouwkasten in deze ruimte.
Alle slaapkamers zijn voorzien van een elektrisch bedienbare rolluiken.
De badkamer is geheel betegeld en voorzien van een inloopdouche met regendouche en handdouche, een 2e toilet en een wastafel. Heel fijn is het grote draai/kiepraam dat zorgt voor extra ventilatie.
Dichte trap naar de 2e verdieping.
2e verdieping
Overloop met opstelplaats voor de wasmachine en CV (2020). Ook de omvormer voor de zonnepanelen is hier geplaatst. Er is extra opbergruimte onder de schuine wand aan de voorzijde van de woning.
Slaapkamer 4 is door de dakkapel (kunststof) een lichte en fijne slaapkamer geworden. Deze dakkapel is voorzien van een elektrisch bedienbaar rolluik. Onder de schuine wand aan de voorzijde van de woning is een handige schuifkast gemaakt voor extra opbergruimte.
Buiten
De woning ligt op een groot perceel van 272 m² er is een voor-, zij- en achtertuin.
Via de oprit naast de woning bereikt u via een houten poort de achtertuin.
De achtertuin ligt op het zuidoosten, waardoor u al vroeg zult genieten van de opkomende zon in. Rondom het gras zijn een aantal bloemborders en mooie oude bomen/struiken, waaronder een mooie olijfboom, magnolia en achter in de tuin zijn 2 mooie knoestige leibomen.
Aan de linkerzijde is een stenen berging, voorzien van elektra en een raam. Daar is ook de buitenkraan gevestigd.
De royale zijtuin is voornamelijk in gebruik als oprit, maar biedt veel mogelijkheden.
Aan de achterzijde staat de oorspronkelijke garage. Deze garage is van steen en voorzien van elektra. Op dit moment is deze ruimte in gebruik als berging, maar desgewenst kunt u deze ruimte weer transformeren tot een garage.
De voortuin is gelegen op het noordwesten en is grotendeels voorzien van vaste planten.
KENMERKEN
Type woning: Eengezinswoning, hoekwoning
Aantal kamers: 5
Aantal slaapkamers: 4
Bouwjaar: 1958
Gebruikersoppervlakte: ca. 113 m²
Perceel: 272 m²
Inhoud: ca. 406 m³
Berging 1: ca. 6 m²
Berging 2 (garage): ca. 15.5 m²
Ligging achtertuin: Zuidoost
Ligging zijtuin: Zuid
Ligging voortuin: Noordwest
Locatie: Dubbeldam, in woonwijk
Elektra: 7 groepen, 1 aardlek- en 1 hoofdschakelaar
Internet / TV: Glasvezel aansluiting
Verwarming: CV Intergas Kombi Kompakt HRE 28/24 A (2020)
Zonnepanelen: 12
Parkeren: Op eigen terrein
Kadaster: Dubbeldam, sectie A, nummer 4066
Energielabel: B
Oplevering: In overleg, kan spoedig
AFMETINGEN
Begane grond
- Hal: ca. 2.16 x 4.70 m;
- Toilet: ca. 1.10 x 0.84 m;
- Woonkamer: ca. 3.50 x 9.10 m;
- Keuken: ca. 2.06 x 4.00 m.
Eerste verdieping
- Overloop: ca. 3 m²;
- Slaapkamer 1: ca. 3.60 x 3.70 m;
- Slaapkamer 2: ca. 2.05 x 2.75 m;
- Slaapkamer 3: ca. 3.60 x 3.26 m;
- Badkamer: ca. 2.05 x 1.54 m.
Tweede verdieping
- Overloop: ca. 2.06 x 2.50 m;**
- Slaapkamer 4: ca. 3.60/2.70 x 3,65/ 2.50 m.**
**gemeten vanaf 1.50 m hoogte
Buiten (zie plattegrond)
- Achtertuin: ca. 13.00 x 11.00 m;
- Berging 1: ca. 2.00 x 3.06 m;
- Berging 2: ca. 2.82 x 5.70/5.40 m;
- Zijtuin: ca. 2.82 x 9.60 m;
- Voortuin: ca. 8.00 x 6.00 m.
Disclaimer
Nadrukkelijk vermelden wij dat deze informatieverstrekking niet als een aanbieding of offerte mag worden beschouwd. Aan deze gegevens kunnen derhalve geen rechten worden ontleend en zijn wijzigingen voorbehouden.
De vermelde afmetingen/ oppervlakten in deze informatie zijn gemeten op basis van de BBMI (Branche Brede Meetinstructie). De meetinstructie is bedoeld om een meer eenduidige manier van meten toe te passen voor het geven van een indicatie van de gebruiksoppervlakte. De meetinstructie sluit verschillen in meetuitkomsten niet volledig uit, door bijvoorbeeld interpretatieverschillen, afrondingen of beperkingen bij het uitvoer en van de meting.
Let op: een aantal foto’s in deze verkooppresentatie zijn genomen met een groothoeklens. Voor verkrijging van een reële indruk van de ruimten dient u de foto’s te spiegelen aan de vermelde afmetingen. Indien er plattegronden aan deze brochure zijn toegevoegd, houdt u er dan rekening mee dat deze plattegronden slechts een indicatie geven van de indeling.
Heeft u als geïnteresseerde deze woning bezichtigd met In Dordrecht Makelaardij, dan willen wij u graag verzoeken om ons binnen 3 werkdagen een reactie te geven. In Dordrecht Makelaardij verlangt bij een verkooptransactie dat de kopende partij t.b.v. de verkopende partij een bankgarantie stelt c.q. waarborgsom stort ter grootte van 10% van de koopsom kosten koper. Dit ter meerdere zekerheid tot nakoming van de verplichtingen die voortvloeien uit de koopakte voor de kopende partij.
Plattegronden
Van Eedenstraat 1_bg_2D.jpg
Van Eedenstraat 1_bg_3D.jpg
Van Eedenstraat 1_1e_2D.jpg
Van Eedenstraat 1_1e_3D.jpg
Van Eedenstraat 1_2e_2D.jpg
Van Eedenstraat 1_2e_3D.jpg
Van Eedenstraat 1_berging 1_2D.jpg
Van Eedenstraat 1_berging 2_2D.jpg
Van Eedenstraat 1_perceeloverzicht_2D.jpg
Van Eedenstraat 1_perceeloverzicht_3D.jpg