Beschrijving
Vrijstaand wonen in een karakteristieke jaren-30 woning aan de Haaswijkweg West op Dubbeldam! Met aan de voorzijde de erker en mooi zicht op het water en het groen is het een genot om hier te wonen. Aan de achterzijde openslaande deuren naar de tuin en onder meer een riante halfopen keuken.
Deze goed verzorgde woning heeft op de eerste verdieping twee slaapkamers. Het oorspronkelijke achterhuis is nu een verlengde van de woning waardoor er een multifunctionele ruimte is ontstaan: werken aan huis, een hobbykamer of een extra slaapkamer, de keuze is aan u. De woning is in 1992 flink onder handen genomen waarbij de westzijde is vergroot.
Er zijn in Dubbeldam een aantal straatjes die het dorpse karakter versterken. Haaswijkweg West is behoort zeker tot deze categorie.
Samenvattend: “Dorps wonen met stedelijke voorzieningen!”
ALGEMEEN
• Vrijstaand
• Jaren-30 woning
• 113 m² woonoppervlakte
• Mooi uitzicht
• Multifunctioneel achterhuis
• Parkeren op eigen terrein
• Veel bergruimte (berging bg, vliering en wijnkelder)
• Moderne / landelijke keuken
• Houten vloerdelen (bg)
• 12 zonnepanelen
• CV uit 2024
• Locatie: dichtbij voorzieningen
INDELING
Begane grond
De hal ademt al direct de jaren-30 sfeer. Hier bevindt zich meterkast, de garderobe en het toilet. Achter het zeer ruime toilet is er nog een berging. De hal geeft verder toegang tot de trap naar de eerste verdieping en de woonkamer.
De woonkamer is zeer sfeervol. De erker met glas in lood ramen geeft aan de voorzijde een mooi zicht op de waterpartij en het groen. Doordat u vrijstaand woont is er aan vier zijdes lichtinval. Er is een hout gestookte open haard en de massief eiken vloerdelen geven deze kamer een warme uitstraling.
De achterzijde is voorzien van openslaande deuren naar de achtertuin. Er is hier ook een elektrisch bedienbaar rolluik geplaatst.
De halfopen keuken is eveneens aan de achterzijde van de woning gesitueerd.
De moderne-landelijke keuken (2017) heeft een werkblad van ruim 5 meter! Het spoelgedeelte en kookgedeelte zijn zo geplaatst dat u altijd zicht heeft op de tuin. Er is veel werk- en bergruimte beschikbaar. Uiteraard is deze keuken van alle gemakken voorzien, zoals een brede inductie kookplaat, vaatwasser, combi-oven, koelkast en vriezer. Alle apparatuur is van Bosch.
Via de keuken bereikt u de berging.
Deze berging (voorheen garage) is de ideale plek voor uw fietsen, gereedschap en tuinspullen. Hier is tevens de CV Installatie (2024) geplaatst. De achter- en zijtuin zijn vanuit de berging direct bereikbaar. Leuk om te vermelden dat deze berging en de hal voorzien zijn van een sedumdak.
De berging sluit ook aan op het voormalige achterhuis. Het achterhuis bestaat momenteel uit een hobbykamer en een extra werkkamer.
De hobbykamer is voorzien van pantry met koelkasten en een spoelbak. De vliering is vanuit deze ruimte bereikbaar en heeft extra bergruimte.
De extra werkkamer kan ideaal gebruikt worden als “slaapkamer 1”. De nokhoogte van ruim 3 meter en de diverse ramen geven deze ruimte een speels karakter. Er is een vaste internet aansluiting. Hier is tevens toegang tot de wijnkelder; hier is de stahoogte beperkt.
1e verdieping
De overloop geeft toegang tot de 2 slaapkamers, de badkamer het dakterras en de bergzolder.
Slaapkamer 2 ligt aan de voorzijde van de woning en is de “master bedroom”. Deze slaapkamer is voorzien van een vaste kast. Het zicht over de brede waterpartij is mooi.
Slaapkamer 3 ligt aan de achterzijde en is een prima slaapkamer.
De badkamer is ruim bemeten en heeft onder meer een douche, wastafelmeubel en een tweede toilet. Hier is ook een wasmachineaansluiting. Het dakraam zorgt samen met de mechanische ventilatie voor een goede vochthuishouding.
Het dakterras is een welkome aanvulling op het buitenleven. In het voor- en najaar kunt u al heerlijk genieten van het zonnetje. Het rolluik is elektrisch bedienbaar.
Via een vlizotrap vanuit de overloop bereikt u de verrassend grote bergzolder: hier is een zee van ruimte met een totale lengte van ca. 7.40 meter.
Buiten
Het “voorhuis” heeft aan 4 zijdes een tuin. De achtertuin (zuid) grenst direct aan de oostelijke zijtuin. De voortuin (noord) is aan de westzijde verbonden met het pad naar de voordeur en de berging.
De achtertuin / zijtuin oost is de hoofdtuin. Deze besloten en idyllische tuin is voorzien van diverse borders met onder meer Hortensia’s, een Prunus en een druivenrank. De oude perenboom geeft in een goed jaar veel fruit.
De voortuin/zijtuin west is ruim 11 meter breed en is netjes verzorgd. Diverse vaste planten zoals Hortensia’s, Lavendel en een Yucca worden afgewisseld met siergrind. Het pad langs de woning brengt u naar de voordeur en de berging. Parkeren doet u op eigen terrein.
De ligging
In de omgeving van de Haaswijkweg West zijn er diverse basis- en middelbare scholen, het gezellige Damplein met de supermarkten en buurtwinkels, de sportclubs, parken en het natuurgebied en de Nieuwe Dordtse Biesbosch. Met de fiets bent u zo in de historische binnenstad van Dordrecht. De N3 is snel bereikbaar; deze sluit aan op de A15/A16 richting Breda of Rotterdam.
KENMERKEN
Soort woning: Eengezinswoning
Bouwsoort: Vrijstaand, Jaren-30
Bouwjaar: 1934
Ligging: In woonwijk, Dubbeldam
Woonoppervlakte: ca. 113 m²
Perceeloppervlakte: 280 m²
Inhoud: ca. 495 m³
Aantal kamers: 4
Slaapkamers: 3
Parkeren: Eigen terrein en openbaar (gratis)
Energielabel: C
CV-Ketel: Nefit 2024 (eigendom)
Elektra: 12 groepen, 3 aardlek- en 1 hoofdschakelaar (2017)
Internet/TV: Glasvezel
Kadaster: Dubbeldam, A 3773
Oplevering: In overleg, zomer 2026
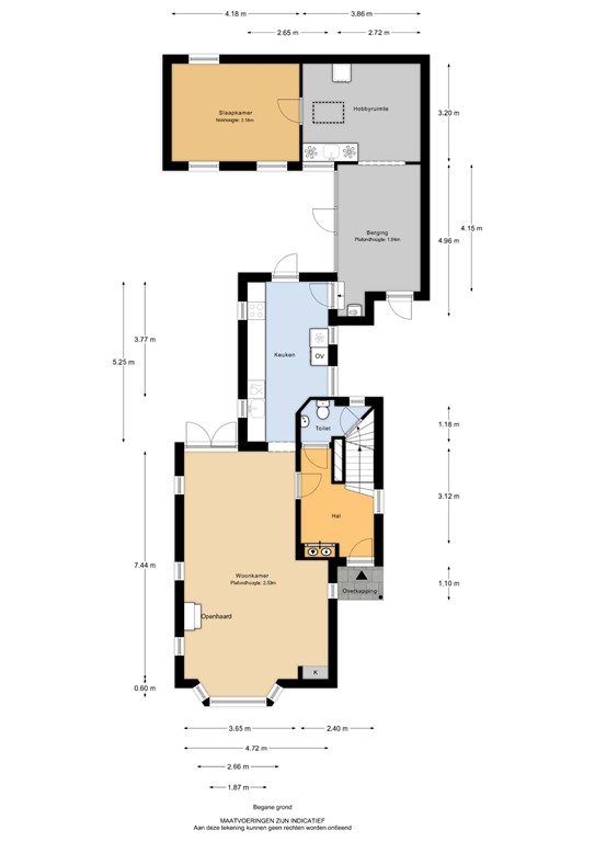
AFMETINGEN
Begane grond
- Hal: ca. 2.40 x 3.12 m;
- Toilet: ca. 2.50 m²;
- Woonkamer: ca. 4.72/3.65 x 7.44 m;
- Keuken: ca. 2.65 x 5.25 m;
- Bijkeuken/berging: ca. 2.72 x 4.15/4.96 m;
- Hobbyruimte: ca. 3.86 x 3.20 m;
- Slaapkamer 1: ca. 4.18 x 3.20 m;
- Kelder: ca. 1.27 x 2.50 m (plafondhoogte 1.22 m).
Eerste verdieping
- Overloop: ca. 8 m²;
- Slaapkamer 2: ca. 3.58 x 4.20 m**;
- Slaapkamer 3: ca. 2.68 x 3.17 m**;
- Badkamer: ca. 2.17 x 2.76/3.90 m.;
- Dakterras (zuid) : ca. 3.14 x 4.15 m.
** gemeten vanaf 1.50 m hoogte
Bergzolder (nokhoogte ca. 2.44 m.)
- Bergzolder: ca. 1.11 x 7.37 m** .
** gemeten vanaf 1.50 m hoogte
Buiten (zie plattegrond)
- Achtertuin (zuid): ca. 10.70 x 12.60 m;
- Voortuin (noord): ca. 11.25 x 6.16 m;
- Zijtuin (west): ca. 25 m²;
- Zijtuin (oost): ca. 15 m².
Disclaimer
Nadrukkelijk vermelden wij dat deze informatieverstrekking niet als een aanbieding of offerte mag worden beschouwd. Aan deze gegevens kunnen derhalve geen rechten worden ontleend en zijn wijzigingen voorbehouden. De vermelde afmetingen/ oppervlakten in deze informatie zijn gemeten op basis van de BBMI (Branche Brede Meetinstructie). De meetinstructie is bedoeld om een meer eenduidige manier van meten toe te passen voor het geven van een indicatie van de gebruiksoppervlakte. De meetinstructie sluit verschillen in meetuitkomsten niet volledig uit, door bijvoorbeeld interpretatieverschillen, afrondingen of beperkingen bij het uitvoer en van de meting. Let op: een aantal foto’s in deze verkooppresentatie zijn genomen met een groothoeklens. Voor verkrijging van een reële indruk van de ruimten dient u de foto’s te spiegelen aan de vermelde afmetingen.
Indien er plattegronden aan deze brochure zijn toegevoegd, houdt u er dan rekening mee dat deze plattegronden slechts een indicatie geven van de indeling. Heeft u als geïnteresseerde deze woning bezichtigd met In Dordrecht Makelaardij, dan willen wij u graag verzoeken om ons binnen 3 werkdagen een reactie te geven. In Dordrecht Makelaardij verlangt bij een verkooptransactie dat de kopende partij t.b.v. de verkopende partij een bankgarantie stelt c.q. waarborgsom stort ter grootte van 10% van de koopsom kosten koper. Dit ter meerdere zekerheid tot nakoming van de verplichtingen die voortvloeien uit de koopakte voor de kopende partij.
Plattegronden
Haaswijkweg West 48_Begane grond.jpg
Haaswijkweg West 48_Begane grond_3D.jpg
Haaswijkweg West 48_1e verdieping.jpg
Haaswijkweg West 48_1e verdieping_3D.jpg
Haaswijkweg West 48_Bergzolder.jpg
Haaswijkweg West 48_Kelder.jpg
Haaswijkweg West 48_Situatie.jpg
Haaswijkweg West 48_Situatie_3D.jpg