Beschrijving
Prima onderhouden jaren-30 eindwoning met souterrain! Deze 3 kamer woning (voorheen 4 kamers) is op de begane grond en eerste verdieping voorzien van kunststof kozijnen. De tuin en het balkon liggen gunstig op het noordwesten. Doordat de keuken in het souterrain is geplaatst beschikt deze woning nu over een grote woonkamer op de begane grond.
Op de verdieping zijn 2 prima slaapkamers en een grote badkamer. De vliering zorgt daarnaast voor praktische opbergruimte.
De keuken sluit direct aan op de tuin. Deze tuin heeft grote en multifunctionele berging.
De Floresstraat is ideaal gelegen in de populaire wijk “Indische buurt ”. Alle voorzieningen zijn in de directe nabijheid en u fietst zo de stad in!
ALGEMEEN
• Kunststof kozijnen met HR ++ op de begane grond en 1e verdieping
• 2 airco units (2025)
• 4 zonnepanelen (2025)
• Energielabel C
• Meterkast vernieuwd (2024)
• Alle kamers en berging voorzien van vast internet
• Alarmsysteem, Domotica
• Souterrain met leefkeuken (hoogte onder de balken = ca. 1.86 m)
• Bergzolder, nokverhoging mogelijk
• Balkon en tuin met zij ingang
• Multifunctionele berging (betonnen vloer, elektra)
INDELING
Begane grond
Via de voortuin bereikt u de gang met meterkast. Deze gang geeft toegang tot het toilet en de woonkamer.
De woonkamer is netjes afgewerkt. Doordat de woonkamer van voor naar achter doorloopt voelt deze licht en ruim aan. De massief eiken vloer (blank eiken, geolied) en de schouw geven deze kamer een warme uitstraling. In juli 2025 is er een airco-unit geplaatst. Via een schuifdeur aan de aan de achterzijde bereikt u het balkon. Dit prettige balkon is voorzien van composiet vloerafwerking en hekwerk; deze is onderhoudsvrij en heeft een natuurlijke uitstraling.
Via de eikenhouten trap vanuit de woonkamer bereikt u de eerste verdieping
Eerste verdieping
Deze verdieping heeft 2 slaapkamers en een badkamer. De gehele eerste verdieping is voorzien van kunststof kozijnen met HR ++ beglazing.
Slaapkamer 1 bevindt zich aan de voorzijde van de woning. Deze “master bedroom” beslaat de volledige breedte van de woning. Oorspronkelijk waren dit 2 slaapkamers. De recent geplaatste airco unit kan koelen en verwarmen.
Slaapkamer 2 is eveneens een prima slaapkamer en ligt aan de achterzijde van de woning.
De badkamer is ruim en beschikt over een comfortabele stoomdouche. Het brede wastafelmeubel heeft een dubbele wastafel en er is een 2e toilet. Deze ruimte is geheel betegeld en het plafond is voorzien van inbouwspotjes. Het raam (voorzien van ventilatierooster) en de mechanische afzuiging zorgen voor voldoende ventilatie.
Bergzolder
De overloop op de eerste verdieping geeft middels een vlizotrap toegang tot de bergzolder. Deze handige vliering heeft een nokhoogte van ca. 1.57 m. Hier bevindt zich de CV installatie (2024). Er is eventueel een mogelijkheid deze woning (in de toekomst) te vergroten met een nokverhoging; hierdoor krijgt u een extra verdieping. Veel buren zijn u al voorgegaan.
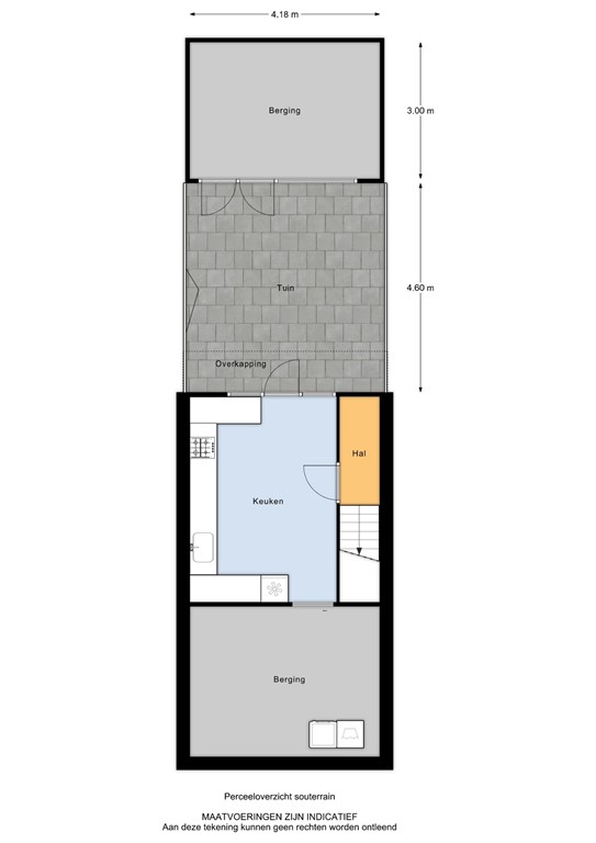
Souterrain (-1)
Het onderhuis heeft een grote keuken aan de achterzijde en een wasruimte aan de voorzijde van de woning. De leefkeuken is standaard uitgevoerd waarbij de oven, de kookplaat en de afzuigkap in 2024 zijn vernieuwd. De “smart oven” beschikt over 2 componenten.
Vanuit de keuken bereikt u de wasruimte en de achtertuin.
De wasruimte is praktisch ingedeeld. Naast de wasmachine en wasdroger is er voldoende opbergruimte beschikbaar. Deze ruimte is ook ideaal te gebruiken als bijkeuken.
Buiten
De achtertuin is bereikbaar vanuit het souterrain of via de poort. Deze stadstuin heeft grote grijze tegels en is op het westen gelegen. Er is een watertappunt en er zijn twee elektra aansluitingen. De grote berging (ca. 4.18 x 3.00 m) is voorzien van een vorstvrije betonnen vloer met plavuizen afwerking, heeft elektra, internet en een breed kiepraam. De werkbank blijft achter, altijd handig !
De voortuin is netjes bestraat. Het onderhoudsvrije hekwerk is van composiet. Ook hier is er een elektrapunt en waterkraan beschikbaar.
De ligging
De Floresstraat is prettig gelegen in de Indisch buurt zuid. Er zijn buurtwinkels bij het Vogelplein en de Reeweg Oost. Diverse basisscholen en middelbare scholen zijn in de directe omgeving. U bent in enkele minuten in de historische binnenstad van Dordrecht of het Centraal Station. Het groen met onder meer het Wantijpark ligt om de hoek. De N3, welke aansluit op de A15 en A16 is eveneens goed bereikbaar.
Parkeren
Er is gratis parkeergelegenheid voor de deur.
KENMERKEN
Type woning: Eengezinswoning
Soort: Eindwoning, Jaren-30
Aantal kamers: 3 (voorheen 4)
Aantal slaapkamers: 2 (voorheen 3)
Bouwjaar: 1937
Ligging tuin: Noordwest
Gebruikersoppervlakte: 72 m² (exclusief souterrain)
Extra souterrain: 33.1 m² (hoogte onder balken = ca. 1.86 m)
Perceeloppervlakte: 99 m²
Balkon: 4.1 m²
Berging: 12.6 m²
Inhoud: ca. 395 m³
Locatie: Indische buurt
Elektra: 13 groepen, 3 aardlek- en 1 hoofdschakelaar
Internet: Glasvezel
Zonnepanelen: 4 stuks (2025)
Airco: 2 stuks (2025)
Verwarming: Gas CV, Intergas Extreme 36 (2024)
Parkeren: Openbaar parkeren (gratis)
Kadaster: Dordrecht, sectie B, nummer 1199
Energielabel: C
Oplevering: in overleg
AFMETINGEN
Begane grond
- Gang: ca. 1.10 x 1.90 m;
- Toilet: ca. 1.10 x 1.00 m;
- Woonkamer: ca. 3.28/4.50 x 8.00 m;
- Balkon: ca. 4.50 x 0.90 m.
Eerste verdieping
- Overloop: ca. 1.38 x 1.00 m;
- Slaapkamer 1: ca. 4.35/3.58 x 3.94/3.02 m;
- Slaapkamer 2: ca. 2.20 x 3.96 m;
- Badkamer: ca. 2.18 x 2.85 m.
Bergzolder
- Bergzolder: ca. 4.35 x 6.40 m (nokhoogte = ca. 1.57 m).
Souterrain (-1, hoogte = ca. 1.86 m.)
- Keuken: ca. 3.26 x 4.52 m;
- Hal: ca. 0.92 x 4.52 m;
- Berging/bijkeuken: ca. 4.50 x 3.30 m.
Buiten
- Voortuin: ca. 4.50 x 1.90 m;
- Achtertuin: ca. 4.50 x 4.60 m;
- Berging: ca. 4.18 x 3.00 m.
Disclaimer
Nadrukkelijk vermelden wij dat deze informatieverstrekking niet als een aanbieding of offerte mag worden beschouwd. Aan deze gegevens kunnen derhalve geen rechten worden ontleend en zijn wijzigingen voorbehouden.
De vermelde afmetingen/ oppervlakten in deze informatie zijn gemeten op basis van de BBMI (Branche Brede Meetinstructie). De meetinstructie is bedoeld om een meer eenduidige manier van meten toe te passen voor het geven van een indicatie van de gebruiksoppervlakte. De meetinstructie sluit verschillen in meetuitkomsten niet volledig uit, door bijvoorbeeld interpretatieverschillen, afrondingen of beperkingen bij het uitvoer en van de meting.
Let op: een aantal foto’s in deze verkooppresentatie zijn genomen met een groothoeklens. Voor verkrijging van een reële indruk van de ruimten dient u de foto’s te spiegelen aan de vermelde afmetingen. Indien er plattegronden aan deze brochure zijn toegevoegd, houdt u er dan rekening mee dat deze plattegronden slechts een indicatie geven van de indeling.
Heeft u als geïnteresseerde deze woning bezichtigd met In Dordrecht Makelaardij, dan willen wij u graag verzoeken om ons binnen 3 werkdagen een reactie te geven. In Dordrecht Makelaardij verlangt bij een verkooptransactie dat de kopende partij t.b.v. de verkopende partij een bankgarantie stelt c.q. waarborgsom stort ter grootte van 10% van de koopsom kosten koper. Dit ter meerdere zekerheid tot nakoming van de verplichtingen die voortvloeien uit de koopakte voor de kopende partij.
Plattegronden
Floresstraat 57_Begane grond_2D.jpg
Floresstraat 57_Begane grond_3D.jpg
Floresstraat 57_1e verdieping_2D.jpg
Floresstraat 57_1e verdieping_3D.jpg
Floresstraat 57_Bergzolder_2D.jpg
Floresstraat 57_Bergzolder_3D.jpg
Floresstraat 57_Souterrain_2D.jpg
Floresstraat 57_Souterrain_3D.jpg
Floresstraat 57_Perceeloverzicht souterrain_2D.jpg
Floresstraat 57_Perceeloverzicht souterrain_3D.jpg