Beschrijving
Comfortabel wonen op Dubbeldam! Deze goed onderhouden 5 kamer woning ligt in de geliefde wijk Burgemeester Beelaertspark. Naast de 4 prima slaapkamers is er een prettige tuin gelegen op het westen.
De lichte woonkamer sluit middels de aluminium schuifpui aan op de achtertuin. Aan de voorzijde bevindt zich de moderne keuken. De eerste verdieping heeft 3 prima slaapkamers en een badkamer. De tweede verdieping heeft nog een vierde slaapkamer; deze wordt “studio” genoemd. Eventueel kunt u op deze verdieping nog een dakterras of extra kamer creëren.
Burgemeester Beelaertspark ligt centraal in de populaire wijk Dubbeldam. De basisscholen zijn allen op loopafstand. Het gezellige Damplein met de supermarkten en buurtwinkels, diverse middelbare scholen, de sportclubs en het natuurgebied de Nieuwe Dordtse Biesbosch liggen eveneens in de directe nabijheid.
UITGELICHT
• Locatie!
• 4 slaapkamers
• Mogelijkheid voor uitbreiden
• Prettige tuin op het westen
• Veel voorzieningen in directe omgeving
• CV (2023)
• Moderne keuken (2021)
• Moderne badkamer (2012)
INDELING
Begane grond
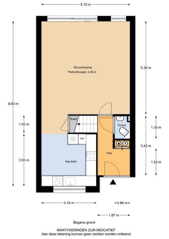
De entree met meterkast en toilet geeft toegang tot de trap naar de eerste verdieping en de woonkamer.
De woonkamer beslaat de volle breedte van de woning. Hierdoor is er veel lichtinval en heeft u goed zicht op de tuin; deze is middels de aluminium schuifpui bereikbaar. De vloer is voorzien van PVC afwerking; deze loopt door naar de keuken en de hal. Doordat de woonkamer praktisch vierkant is zijn er diverse opstellingen mogelijk.
De half-open keuken (2021) is geplaatst in een U-opstelling en heeft daardoor veel werkruimte. Het werkblad is van composiet. De inductie kookplaat, de vaatwasser, de magnetron en de combi-oven zijn allen van Siemens. Er is tevens een Quooker geplaatst. De apothekerskast is een welkome aanvulling.
Er is nog een praktisch berging onder de trap.
1e verdieping
Op deze verdieping zijn 3 slaapkamers en een badkamer. De slaapkamers zijn allen voorzien van een laminaat vloer en de ramen zijn voorzien van ventilatieroosters.
Slaapkamer 1 bevindt zich aan de voorzijde en beslaat de volledige breedte van de woning. Deze slaapkamer is momenteel de “master bedroom” .
Slaapkamer 2 is erg ruim en heeft een mooi zicht op de tuin aan de achterzijde van de woning. Achter de schuifwand is de wasmachine en droger geplaatst.
Slaapkamer 3 is een prima slaapkamer en is eveneens aan de achterzijde gelegen. Deze is momenteel in gebruik als kastenkamer en hobbykamer. De grote schuifkast blijft achter.
De badkamer is geheel betegeld en voorzien van een inloopdouche met rainshower, een breed wastafelmeubel en een tweede toilet. De spiegelkast is erg handig.
2e verdieping
Op de tweede verdieping vindt u de hal met praktische bergruimte. Tevens is hier de kast voor de CV installatie en mechanische ventilatie. Het grote raam in deze hal is eventueel te vervangen door een deur waardoor u een dakterras kan maken. Het maken van een extra slaapkamer behoort ook tot de mogelijkheden. Veel buren zijn u al voorgegaan.
Slaapkamer 4 wordt “de studio” genoemd. Deze lichte kamer heeft aan twee zijdes lichtinval. U kijkt hier mooi uit over de wijk. De hoge nok maken dit een speelse kamer.
De tuin
De kleine voortuin is netjes aangelegd. De bestrating en de groene borders vormen een mooi geheel. De vaste planten en bomen zorgen hier de groene accenten. Er is ruimte voor een bankje en er is een watertappunt beschikbaar.
De achtertuin is onder architectuur aangelegd en is gunstig gelegen op het westen. De tegels zijn diagonaal gelegd en de borders bevinden zich aan de zijkanten. De blauwe regen maakt handig gebruik van de hardhouten balk. De zuiltaxussen maken deze tuin compleet. De containers zijn uit het zicht geplaatst.
De stenen berging met elektra is erg handig. Recent zijn hier de boeiboorden en de dakbedekking vervangen. Deze tuin heeft een watertappunt en een achterom.
Het elektrisch bedienbaar zonnescherm is over de volle breedte van de woning geplaatst.
De ligging
Burgemeester Beelaertspark ligt centraal in de populaire wijk Dubbeldam. De basisscholen zijn allen op loopafstand bereikbaar. Het gezellige Damplein met de supermarkten en buurtwinkels, diverse middelbare scholen, de sportclubs en het natuurgebied De Nieuwe Dordtse Biesbosch liggen in de directe nabijheid. De N3 is snel bereikbaar; deze sluit aan op de A15 en A16 richting Rotterdam, Breda en Gorinchem. Met de fiets bent u in 12 minuten bij het NS Centraal Station.
KENMERKEN
Type woning: Eengezinswoning, tussenwoning
Aantal kamers: 5
Aantal slaapkamers: 4
Bouwjaar: 1995
Ligging voortuin: Oost
Ligging achtertuin: West (met achterom)
Gebruikersoppervlakte: ca. 113 m²
Perceel: 120 m²
Inhoud: ca. 360 m³
Berging: 6.8 m² (steen)
Locatie: Dubbeldam, in woonwijk
Elektra: 10 groepen, 3 aardlek- en 1 hoofdschakelaar (2021 aangepast)
Internet / TV: Glasvezel aansluiting
Verwarming: Gas, Remeha Tzerra (CW 4, 2023)
Kadaster: Dubbeldam, sectie A, nummer 7410
Energielabel: A
Oplevering: in overleg / eind 4e kwartaal 2026
AFMETINGEN
Begane grond
- Hal: ca. 1.87/0.98 x 3.42/1.53 m;
- Toilet: ca. 0.89 x 1.30 m;
- Woonkamer: ca. 5.10 x 5.36/6.36 m;
- Keuken: ca. 3.16 x 3.00 m;
- Trapkast: ca. 1.5 m².
Eerste verdieping
- Overloop: ca. 3.06 x 2.17 m;
- Slaapkamer 1: ca. 5.10 x 3.00/2.60 m;
- Slaapkamer 2: ca. 2.92 x 3.96 m;
- Slaapkamer 3: ca. 2.11 x 4.19 m;
- Badkamer: ca. 1.94 x 2.40 m.
Tweede verdieping
- Overloop: ca. 8 m²;
- Slaapkamer 4: ca. 3.27 x 2.98 m (“studio”).
Buiten
- Voortuin: ca. 5.10 x 3.10/2.20 m;
- Achtertuin: ca. 5.10 x 9.80 m (inclusief berging);
- Berging: ca. 2.26 x 3.00 m.
Disclaimer
Nadrukkelijk vermelden wij dat deze informatieverstrekking niet als een aanbieding of offerte mag worden beschouwd. Aan deze gegevens kunnen derhalve geen rechten worden ontleend en zijn wijzigingen voorbehouden.
De vermelde afmetingen/ oppervlakten in deze informatie zijn gemeten op basis van de BBMI (Branche Brede Meetinstructie). De meetinstructie is bedoeld om een meer eenduidige manier van meten toe te passen voor het geven van een indicatie van de gebruiksoppervlakte. De meetinstructie sluit verschillen in meetuitkomsten niet volledig uit, door bijvoorbeeld interpretatieverschillen, afrondingen of beperkingen bij het uitvoer en van de meting.
Let op: een aantal foto’s in deze verkooppresentatie zijn genomen met een groothoeklens. Voor verkrijging van een reële indruk van de ruimten dient u de foto’s te spiegelen aan de vermelde afmetingen. Indien er plattegronden aan deze brochure zijn toegevoegd, houdt u er dan rekening mee dat deze plattegronden slechts een indicatie geven van de indeling.
Heeft u als geïnteresseerde deze woning bezichtigd met In Dordrecht Makelaardij, dan willen wij u graag verzoeken om ons binnen 3 werkdagen een reactie te geven.
In Dordrecht Makelaardij verlangt bij een verkooptransactie dat de kopende partij t.b.v. de verkopende partij een bankgarantie stelt c.q. waarborgsom stort ter grootte van 10% van de koopsom kosten koper. Dit ter meerdere zekerheid tot nakoming van de verplichtingen die voortvloeien uit de koopakte voor de kopende partij.
Plattegronden
Burgemeester Beelaertspark 77 - Begane grond - 2D.jpg
Burgemeester Beelaertspark 77 - Begane grond - 3D.jpg
Burgemeester Beelaertspark 77 - 1e verdieping - 2D.jpg
Burgemeester Beelaertspark 77 - 1e verdieping - 3D.jpg
Burgemeester Beelaertspark 77 - 2e verdieping - 2D.jpg
Burgemeester Beelaertspark 77 - 2e verdieping - 3D.jpg
Burgemeester Beelaertspark 77 - Berging - 2D.jpg
Burgemeester Beelaertspark 77 - Berging - 3D.jpg
Burgemeester Beelaertspark 77 - Perceeloverzicht - 2D.jpg
Burgemeester Beelaertspark 77 - Perceeloverzicht - 3D.jpg